EasyManua.ls Logo

Daikin FWW02-20DA - Installation; Receiving; Location; Unit Installation

Daikin FWW02-20DA
12 pages
Print Icon
To Next Page IconTo Next Page
To Next Page IconTo Next Page
To Previous Page IconTo Previous Page
To Previous Page IconTo Previous Page
Loading...
2
INSTALLATION
RECEIVING
All units leaving the factory have been inspected to ensure the shipment of high quality products and
reasonable means are utilized to properly pack the fan coil units to protect them in transit.
Carefully inspect all shipments immediately upon delivery. When damage is visible, note this fact on the
carrier’s freight bill and request that the carrier send a representative to inspect the damage. This may be
done by telephone or in person, but should always be confirmed in writing.
The shipment should be unpacked in the presence of the agent so that the damage or loss can be
determined. The carrier’s agent will make an inspection report and a copy will be given to the consignee for
forwarding to the carrier with a formal claim.
LOCATION
Before installation, please check the following:
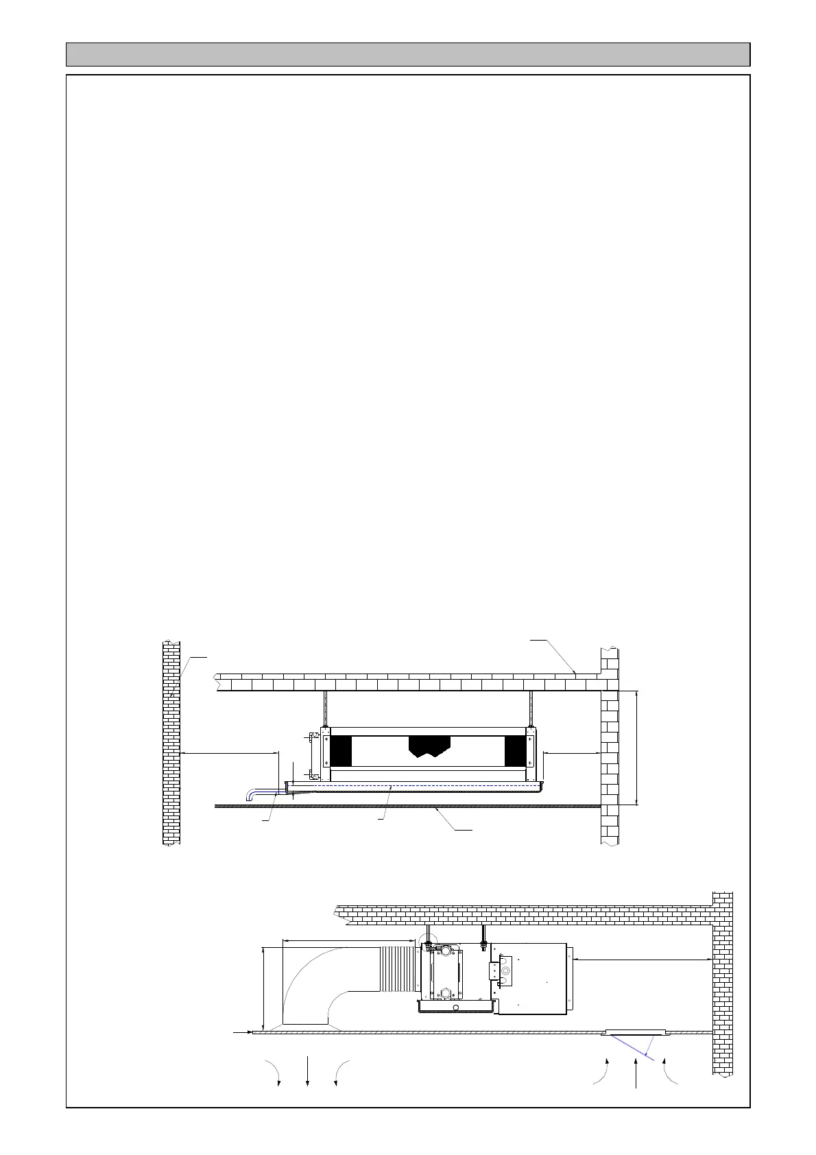
1. There must be enough space for unit installation and maintenance. Please refer to the outline and
dimensions and fig.1 for the minimum distance between the unit and obstacle.
2. In case of installation in free blow, the unit must be installed at a minimum height of 2.5m to avoid contact
with the appliance.
3. Please ensure enough space for piping connection and electrical wiring.
4. Please make sure that the hanging rods can support weight of the unit.
INSTALLATION
1. The unit is designed for concealed ceiling installation.
2. There are holes on the top of the unit for hanging. Please refer to Fig.1. Fig.2 and Fig.3.
3. Make sure that the top of the unit is level.
INSULATION
1. The insulation design and materials should be complying with local and national codes and regulations.
2. Chilled water pipes and all parts on the pipes should be insulated.
3. It is also necessary to insulate the air duct.
CEILING
OBSTACLE
B
C
A
OBSTACLE
≥400mm
≥(H+150)
mm
D
DRAIN PIPE
The suggested slope of the
drain pipe is at least 1:50.
The level of water in the drain
pan should be less than 15mm.
WATER LEVEL
≤15mm
≥200mm
H=the height of FCU
A
DISCHANGE AIR
RETRUN AIR
CEILING ACCESS PANEL
CEILLING
WITH AIR RETRUN
L
M
N
NOTE:
Dimension M and N was
determined by air duct design, air
duct should be fire-proof, refer to
concerned country national and
local regulations.
Circulatory air pressure drop should
be approximately equal to the
External Static Pressure.
≥300mm
WATER INLET
WATER OUTLET
Fig. 2
WITH AND WITHOUT PLENUM FORM:
Fig. 1

Related product manuals