EasyManua.ls Logo

Daikin FWW02-20DA - Outlines and Dimensions; Model Dimensions Table; Unit Diagram

Daikin FWW02-20DA
12 pages
Print Icon
To Next Page IconTo Next Page
To Next Page IconTo Next Page
To Previous Page IconTo Previous Page
To Previous Page IconTo Previous Page
Loading...
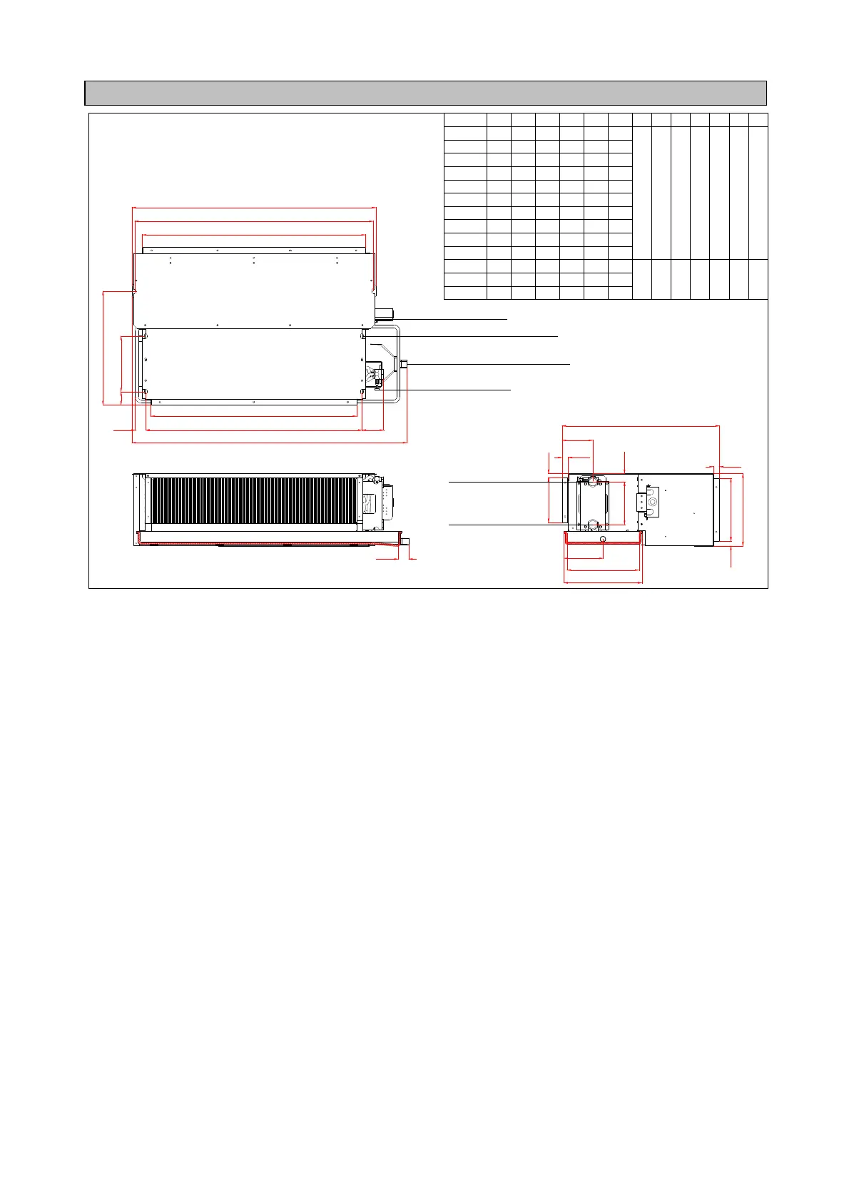
7
242
262
131
I
104
14
20
20
16 J
G
28
H
K
35
WATER SUPPLY Rc3/4
WATER RETURN Rc3/4
MOUNTING HOLES
4-10 x 16
CONDENSATE DRAIN PIPE R3/4
AIR VENT VALVE
TERMINAL BOX
B
C
A
35
44
187
L
D
E
F
Model
A
B C D
E
F G H I J K
FWW02DA 675 452 487 469
522
540
151 143 529 211 243
FWW03DA
FWW04DA
925 692 727 749
802
820FWW05DA
995 772 807 789
842
860FWW06DA
1095 872 907 889
942
960
FWW07DA
1425 1202 1237
1219 1272
1290
FWW08DA
1525 1302 1337 1359 1412 1420FWW12DA
1425
1202 1237
1239
1289
1307
FWW14DA
FWW16DA
382
L
FWW10DA
M
72
M
1095 872 907 889 942 960
825 592 627 649
702
720
1525 1302 1337
1359 1412
1420
675 452 487 469
522
540
1525
1302 1337
1322
1372
1390
201 194 599 266 297
FWW18DA
413 82
1825
1602 1637
1622
1672
1690FWW20DA
OUTLINES AND DIMENSI
ONS
Notes:
1. All dimensions are in mm.
2. All standard units are with back air plenum and without filters.
3. Right hand coil connection shown.

Related product manuals