EasyManua.ls Logo

Daikin NetPro Dual - Outline and Dimensions

Daikin NetPro Dual
19 pages
Print Icon
To Next Page IconTo Next Page
To Next Page IconTo Next Page
To Previous Page IconTo Previous Page
To Previous Page IconTo Previous Page
Loading...
English
1
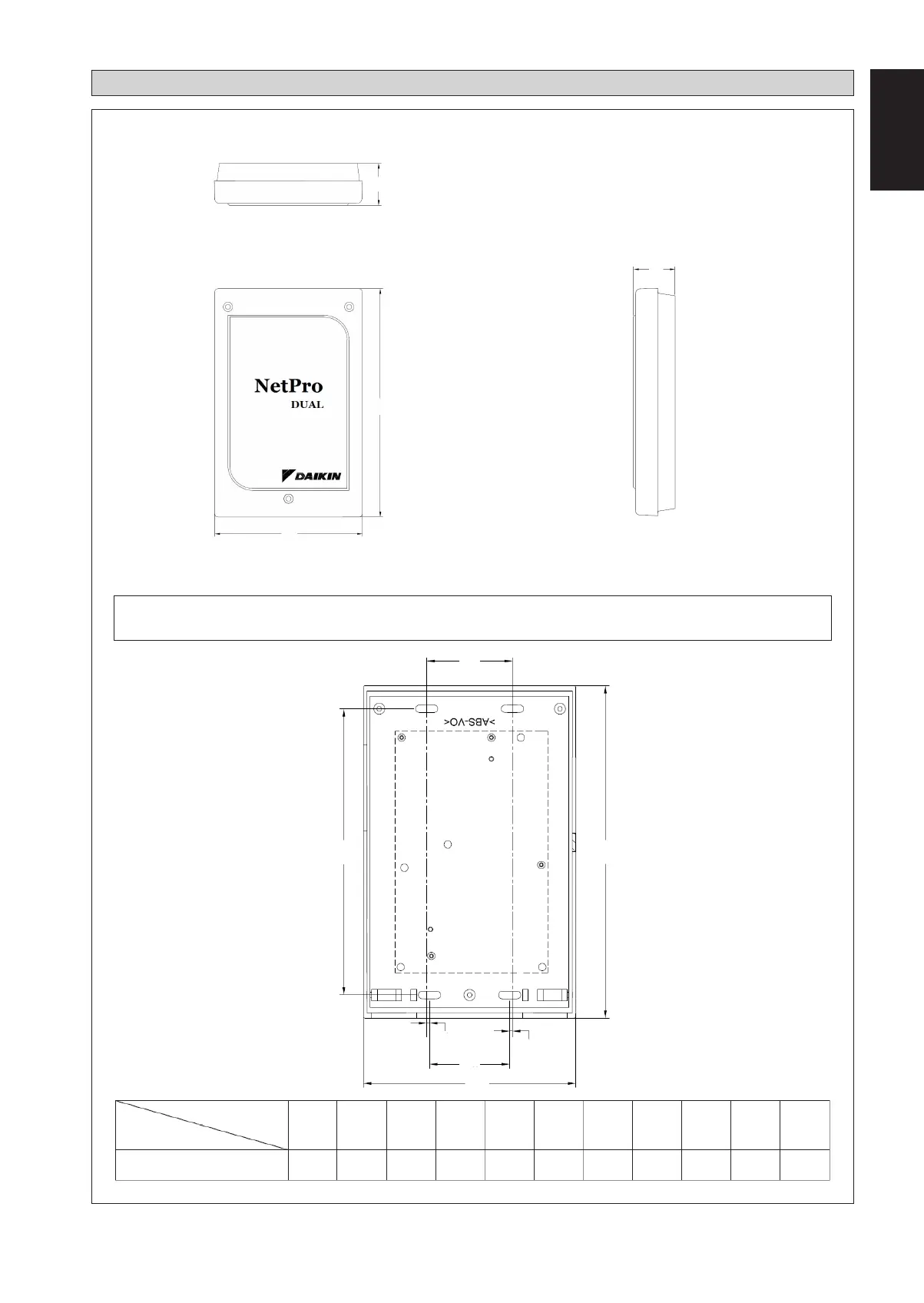
All dimensions are in mm
Dimension
Model
A B C D E F G H I J K
BAG
33.5 118.4 183.4 33.5
46.0
154.0 1.5 43.0 114.0 1.5
179.0
OUTLINE AND DIMENSIONS
Original Instruction
TOP VIEW
SIDE VIEW
FRONT VIEW
1 IM-5WMYJ-0113(2)DAIKIN_EN.indd1 11 IM-5WMYJ-0113(2)DAIKIN_EN.indd1 1 6/10/14 10:07:23 AM6/10/14 10:07:23 AM
A
B
C
D
E
F
G
H
I
J
K

Related product manuals