EasyManua.ls Logo

Daikin R35DV1 - Page 253

Daikin R35DV1
268 pages
To Next Page IconTo Next Page
To Next Page IconTo Next Page
To Previous Page IconTo Previous Page
To Previous Page IconTo Previous Page
Loading...
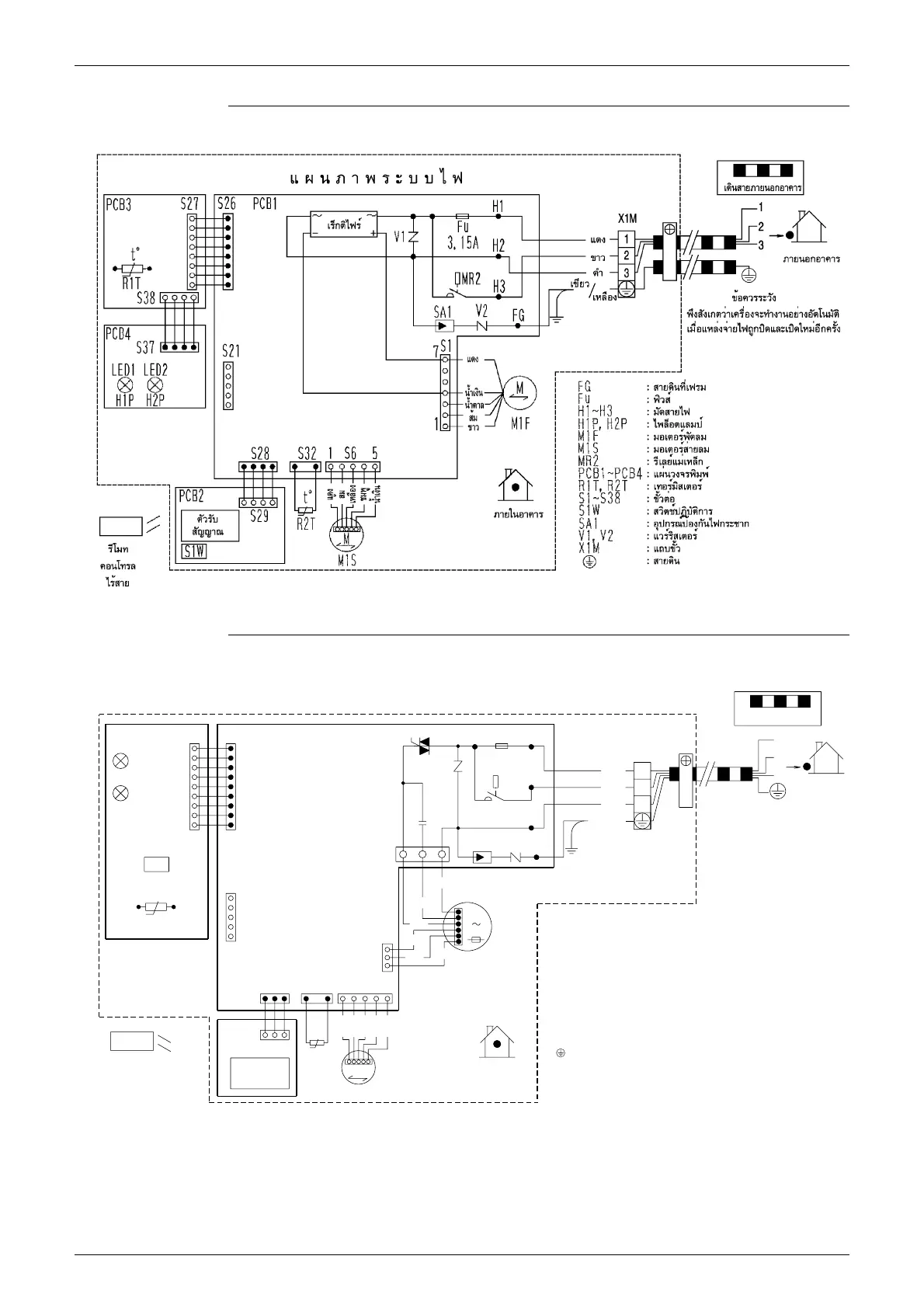
Wiring Diagrams Si01-501
244 Appendix
FT15DV2S
FT25DVM, FT35DVM
3D048588A
WIRELESS
REMOTE
CONTROLLER
PCB3
LED2
H2P
LED1
H1P
S1W
R1T
t°
S27
S26
PCB2
S21
HA
SIGNAL
RECEIVER
PCB1
S29
S28
R2T
S32
t°
1
M1S
M
S6
S7
S1
5
BLU
PPL
BLK
WHT
C70
RED
GRY
V1
t°
M
SA1
INDOOR
3.15A
F1U
140°C
M1F
MR2
V2
H2
H3
H1
FG
X1M
2
3
1
FIELD WIRING.
2
3
1
OUTDOOR
3D048861
NOTE THAT OPERATION WILL
RESTART AUTOMATICALLY IF
THE MAIN POWER SUPPLY IS
TURNED OFF AND THEN BACK
ON AGAIN.
CAUTION
C70 : RUNNING CAPACITOR
FG : FRAME GROUND
F1U : FUSE
H1P~H2P : PILOT LAMP
M1F : FAN MOTOR
M1S : SWING MOTOR
MR2 : MAGNETIC RELAY
PCB1~PCB3 : PRINTED CIRCUIT BOARD
R1T, R2T : THERMISTOR
S1 ~S38 : CONNECTOR
S1W : OPERATION SWITCH
SA1 : SURGE ARRESTER
V1, V2 : VARISTOR
X1M : TERMINAL STRIP
: PROTECTIVE EARTH
RED
ORG
YLW
PNK
BLU
GRN
WHT
RED
BLK
YLW
/

Table of Contents

Other manuals for Daikin R35DV1

Related product manuals