EasyManua.ls Logo

Daikin RPS - Supply Fan Wheel-to-Funnel Alignment

Daikin RPS
152 pages
Print Icon
To Next Page IconTo Next Page
To Next Page IconTo Next Page
To Previous Page IconTo Previous Page
To Previous Page IconTo Previous Page
Loading...
IM 893-10 • ROOFPAK SINGLEZONE UNITS 132 www.DaikinApplied.com
MaInTenanCe
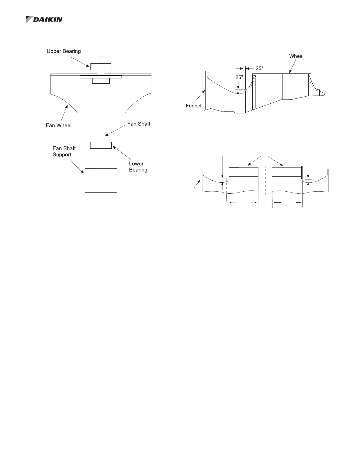
Figure 119: Return Fan Assembly
Supply Fan Wheel-to-Funnel Alignment
If the unit is equipped with an airfoil or backward curved supply
fan, the fan wheel-to-funnel alignment must be as shown in
Figure 120, Figure 121, Figure 122, Figure 123 and Figure
124 to obtain proper air delivery and operating clearance. If
necessary, adjustments are made as follows:
1. Verify that the fan shaft has not moved in its bearings.
2. Loosen the fan hub setscrews and move the wheel(s)
along the shaft as necessary to obtain the correct
dimension shown in Table 31, Table 32, and Table 33.
3. Retighten the setscrews to the torque specication
given in Table 30 on page 131. Tighten the setscrews
over the keyway rst; tighten those at 90 degrees to the
keyway last.
4. Verify that the radial clearance around the fan is uniform.
Radial clearance can be adjusted by slightly loosening
the funnel hold-down fasteners, shifting the funnel as
required, and retightening the fasteners.
Figure 120: 20ʺ DWDI Airfoil Wheel-to-Funnel
Figure 121: 24ʺ DWDI Backward Curved Wheel-to-Funnel
Wheels
.18"
Funnel
9.31"
9.31"
C
L
Fan
.18"

Table of Contents

Other manuals for Daikin RPS

Related product manuals