EasyManua.ls Logo

Dalton MOBILITY 800 - Scale Detail

Default Icon
46 pages
Print Icon
To Next Page IconTo Next Page
To Next Page IconTo Next Page
To Previous Page IconTo Previous Page
To Previous Page IconTo Previous Page
Loading...
38
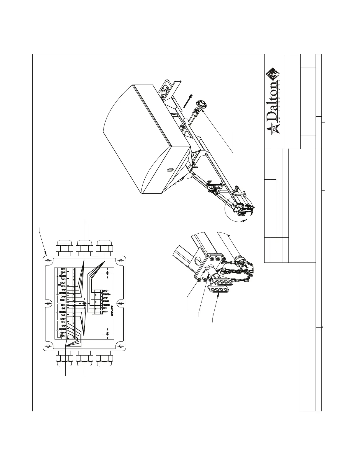
SCALE DETAIL
+,7&+%2/7216&$/(
6&$/(721*8(
:(,*+6&$/(+,7&+
6,* 5('
6,* :+,7(
(;& *5((1
(;& %/$&.
:,5,1*
6+,(/' 25$1*(
&$%/(-81&7,21%2;72021,725
02,7250
&$%/(021,72532:(5
%5$&.(7021,72502817,1*

(9$1%85(167/(12;,$
6KHHW
&+(&.('%<
-81&7,21%2;6&$/(.,7
0DWHULDOQRWVSHFLILHG!
//RQJ

&?B(3'0B9DXOW?6SUHDGHU?02%,/,7<?063DUWV?
'HIDXOW
6&$/(
5(9
6+((72)
6+((77,7/(
$
6,=(
':*
&200(176
35,17'$7(
&21),*
'5$:1%<
3$5725$6$:+2/(:,7+2877+(:5,77(13(50,66,212)'$/721$*,6352+,%,7('
6+((72)

(9$1%85(167/(12;,$
6KHHW
&+(&.('%<
-81&7,21%2;6&$/(.,7
0DWHULDOQRWVSHFLILHG!
//RQJ
-81&7,21%2;6&$/(.,7

&?B(3'0B9DXOW?6SUHDGHU?02%,/,7<?063DUWV?
'HIDXOW
6&$/(
5(9
7+(,1)250$7,21&217$,1(',17+,6'5$:,1*,67+(62/(3523(57<2)'$/721$*$1<5(352'8&7,21,1
6+((77,7/(
$
6,=(
':*
&200(176
35,17'$7(
&21),*
'5$:1%<
35235,(7$5<$1'&21),'(17,$/
3$5725$6$:+2/(:,7+2877+(:5,77(13(50,66,212)'$/721$*,6352+,%,7('
35235,(7$5<$1'&21),'(17,$/
7+(,1)250$7,21&217$,1(',17+,6'5$:,1*,67+(62/(3523(57<2)'$/721$*$1<5(352'8&7,21,1
-81&7,21%2;6&$/(.,7
6&$/(.,7-81&7,21%2;
725($5
72021,725
6(1625
72721*8(6(1625
725($5
:+((/
:+((/
6(1625
-81&7,21%2;6&$/(.,7
6&$/(63,1'/(721
6&$/(63,1'/(721
6&$/(63,1'/(721
$