EasyManua.ls Logo

Danfoss ECL Comfort 310 - Page 24

Danfoss ECL Comfort 310
199 pages
Print Icon
To Next Page IconTo Next Page
To Next Page IconTo Next Page
To Previous Page IconTo Previous Page
To Previous Page IconTo Previous Page
Loading...
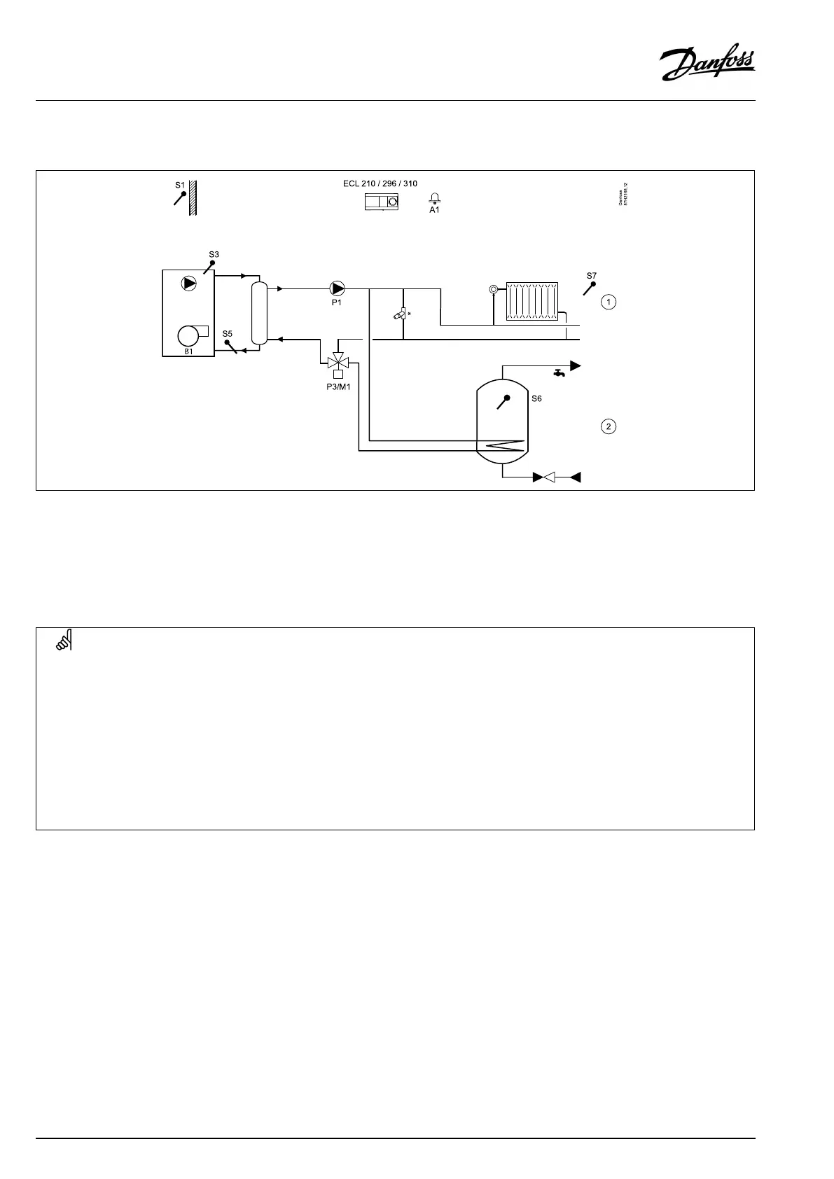
A275.2,exampled
BoilerON/OFFcontrolforaheatingandaDHWcircuit.DHWpriority.Theboilercircuitisequippedwithalowlossheader.
*=pressurereliefvalve
Thepumpintheboilercircuitisnotcontrolled.
AtDHWheatingP3(changeovervalve)isactivatedandthedesiredboilertemperatureliesanumberofdegreesabovethedesiredDHW
temperature.
P1isswitchedON.
SpecialsettingsfortypeA275.2,exampled:
Navigation:
IDno.:
Recommendedsetting:
DHWcircuit(circuit2)
DHWheatingismanagedbychangeovervalveP3/M1:
MENU\Settings\Application:'Ch.-o.valve/P'
12051
OFF
ThedesiredDHWheatingtemperaturemustinfluencethedesiredboilertemperature:
MENU\Settings\Application:‘Tank,sec./prim.'
12053
OFF
24|©Danfoss|2017.09
VI.GU.L2.02
OperatingGuideECLComfort210/296/310,applicationA275/A375

Other manuals for Danfoss ECL Comfort 310

Related product manuals