EasyManua.ls Logo

Danfoss iC7 Series - Safety Information for iC7 Drives; Safety Symbols Explained; Safety and Installation Awareness

Danfoss iC7 Series
18 pages
Print Icon
To Next Page IconTo Next Page
To Next Page IconTo Next Page
To Previous Page IconTo Previous Page
To Previous Page IconTo Previous Page
Loading...
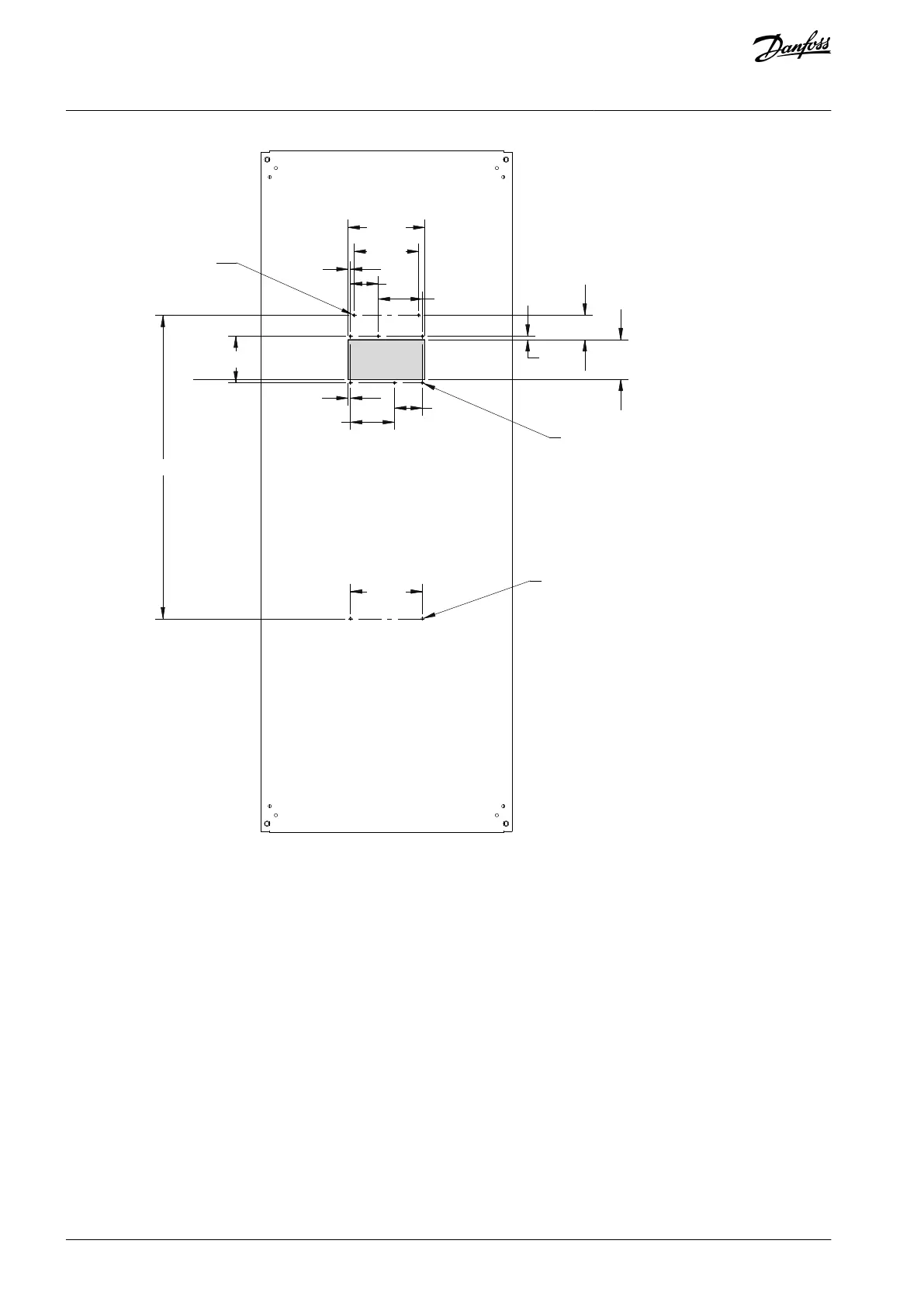
844 (33.2)
2x Ø 8 (0.3)
Drive Mounting Holes
e30bj223.10
200 (7.9)
130 (5.1)
214 (8.4)
180 (7.1)
7 (0.3)
78 (3.1)
122 (4.8)
10 (0.4)
110 (4.3)
68 (2.7)
7 (0.3)
78 (3.1)
122 (4.8)
6x Ø 8 (0.3)
2x Ø 8 (0.3)
Drive Mounting Holes
Illustration 3: FA09 Mounting Plate Template for In-bottom/Out-back Cooling
AN371942757356en-000101 / 136R02526 | Danfoss A/S © 2022.03
Installation
In-bottom/Out-back Cooling Kit for FA09-FA10
Installation Guide

Other manuals for Danfoss iC7 Series

Related product manuals