EasyManua.ls Logo

Danfoss MCD3000 Series - Page 50

Danfoss MCD3000 Series
54 pages
Print Icon
To Next Page IconTo Next Page
To Next Page IconTo Next Page
To Previous Page IconTo Previous Page
To Previous Page IconTo Previous Page
Loading...
MCD3000 Series
50 MG.15.B2.02 VLT is a registered Danfoss trademark
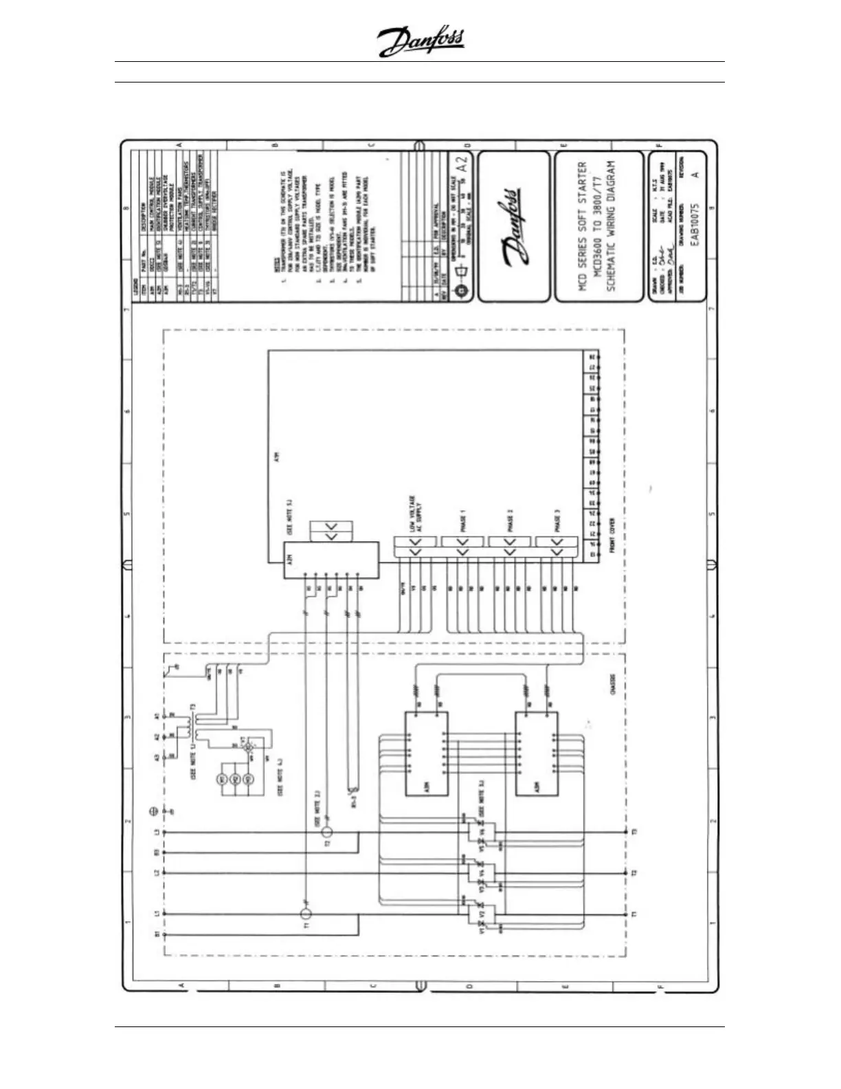
Schematics

Related product manuals