EasyManua.ls Logo

Danfoss VLT 3008 - External Mounting of Display; Connection of Brake Resistors; Connection of Option Cards

Danfoss VLT 3008
158 pages
Print Icon
To Next Page IconTo Next Page
To Next Page IconTo Next Page
To Previous Page IconTo Previous Page
To Previous Page IconTo Previous Page
Loading...
146 MG.30.A7.02 - VLT
®
is a registered Danfoss trademark
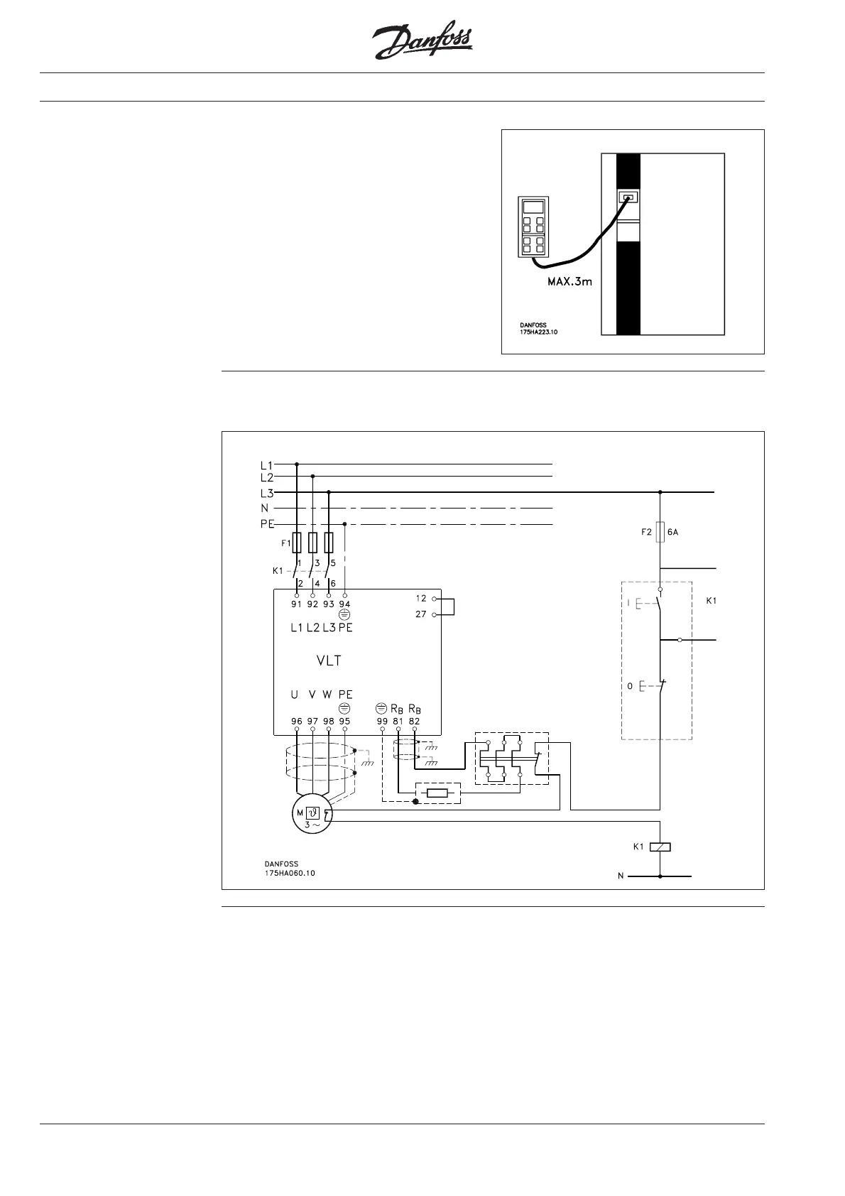
External mounting
of display
The control panel can be mounted
externally using an optional adaptor and
cable.
The length of the cable is 3 metres, which
is enough to mount the control panel in a
cabinet cover.
The enclosure at the cabinet cover is IP 54.
Accessories
Danfoss can supply brake resistors suiting
every size of VLT
®
frequency converters.
Connection of
brake resistors
Connection of the brake resistor
Connection of
option cards
Beside the control card of the VLT
®
frequency converter you will see a free
space.
This space is used for option cards.
Mount the option card using the groove in
the right-hand side of the aluminium tray,
and the two screws.
The electrical connection between the
option card and the standard control card
is done by means of the plugs FK1 - FK4.
The number of option cards is increasing
and the functions of specific option cards
will be described in a separate manual.
Artisan Technology Group - Quality Instrumentation ... Guaranteed | (888) 88-SOURCE | www.artisantg.com

Related product manuals