EasyManua.ls Logo

Dannmar D4-9 - Raising the Crosstubes

Dannmar D4-9
85 pages
Print Icon
To Next Page IconTo Next Page
To Next Page IconTo Next Page
To Previous Page IconTo Previous Page
To Previous Page IconTo Previous Page
Loading...
D4-9 / D4-9X Four-Post Lifts 24 P/N 5900251Rev. A1August 2021
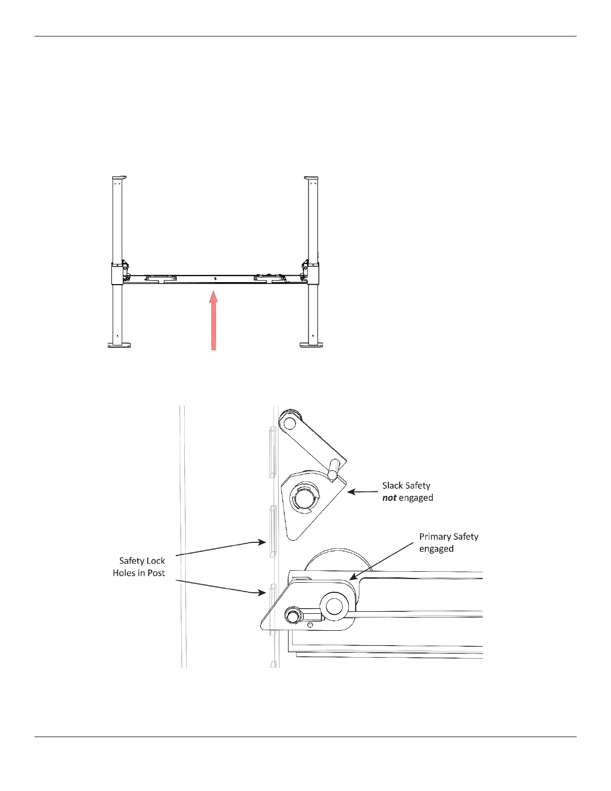
Raising the Crosstubes
After installing the Crosstubes, you need to manually raise them. This makes it easier to complete the
rest of the installation. The two Crosstubes need to be raised to the exact same height and they must
be engaged on the same Primary Safety Lock.
To raise the Crosstubes:
1. Use a Forklift or Shop Crane to carefully raise each Crosstube at least two feet off the ground,
which gives you enough room to work under it.
Important: The Slack Safeties
cannot
be engaged as you continue with the installation.
2. Visually confirm that the Safety Locks on all four Posts are engaged on the Primary Safety Locks.
3. Once both Crosstubes are raised to the same height, all four
Primary Safeties are engaged
,
and all four Slack Safeties are disengaged, you can continue with the installation.

Related product manuals