EasyManua.ls Logo

Dannmar D4-9 - Page 28

Dannmar D4-9
85 pages
Print Icon
To Next Page IconTo Next Page
To Next Page IconTo Next Page
To Previous Page IconTo Previous Page
To Previous Page IconTo Previous Page
Loading...
D4-9 / D4-9X Four-Post Lifts 28 P/N 5900251Rev. A1August 2021
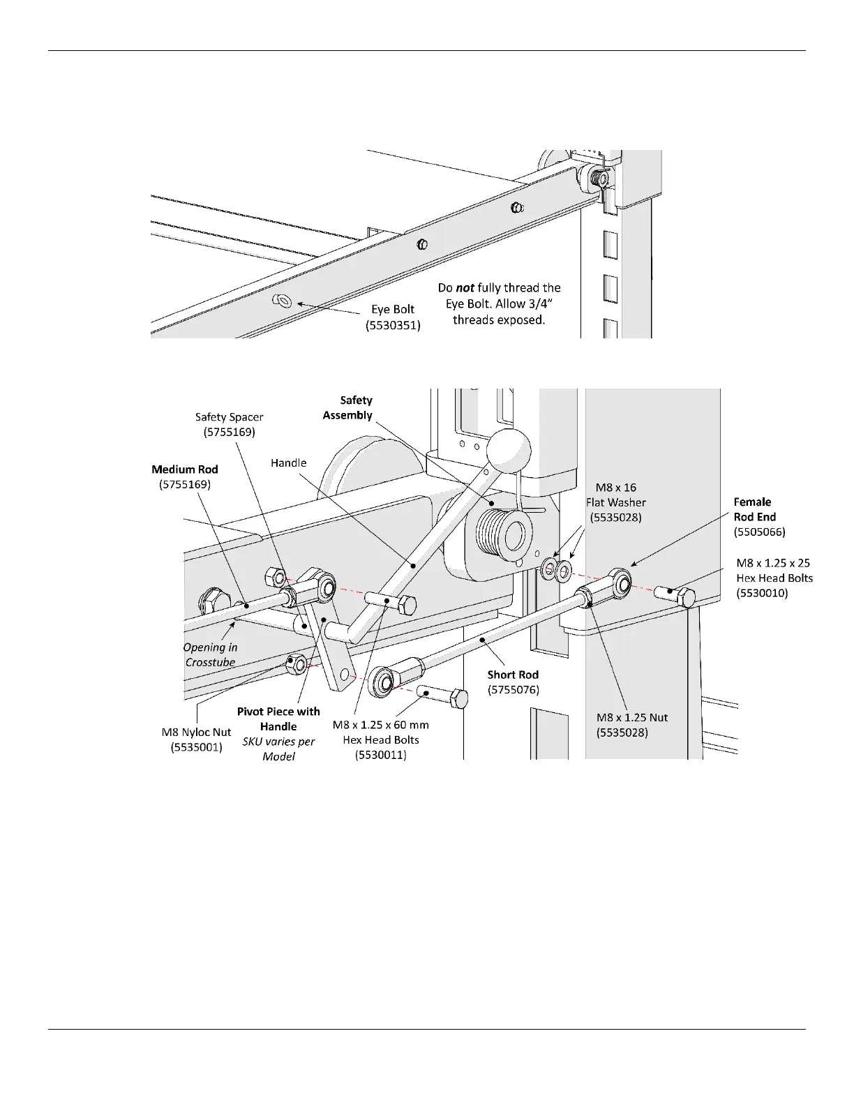
To install the Safety Lock Release Mechanism:
1. With the components described above nearby,
starting on the Crosstube adjacent to the
Power Post
, thread an Eye Bolt into the middle opening of the Crosstube, as shown below.
2. Attach the Female Rod Ends to the Pivot Pieces and the Short and Medium Rods.
Drawing is a close up of the connections to make to the Pivot Piece with the Handle. Not all
components are shown.
3. Place a Safety Spacer next to the Pivot Piece with the Handle, and then route the Rod end through
the opening in the Crosstube, as shown in the drawing above; do this for the other Pivot Piece
(see illustration above).
4. Connect the Short Rod to the appropriate Female Rod Ends that connects to the Power Post
(see illustration above).
5. For the Female Rod Ends that connect to the Safety Assemblies, place two Flat Washers between
the Female Rod End and the Safety Assembly (see illustration above); do this for each Safety
Assembly.
6. Attach one end of the Medium Rod to the Pivot Piece with the Handle (see illustration above).

Related product manuals