EasyManua.ls Logo

Dantherm cdp 75 - Eldiagram;Wiring Diagram;Schaltplan;Schéma Électrique, Схема Соединений;Schema Elettrico, CDP 125 & CDP

Dantherm cdp 75
Print Icon
To Next Page IconTo Next Page
To Next Page IconTo Next Page
To Previous Page IconTo Previous Page
To Previous Page IconTo Previous Page
Loading...
124
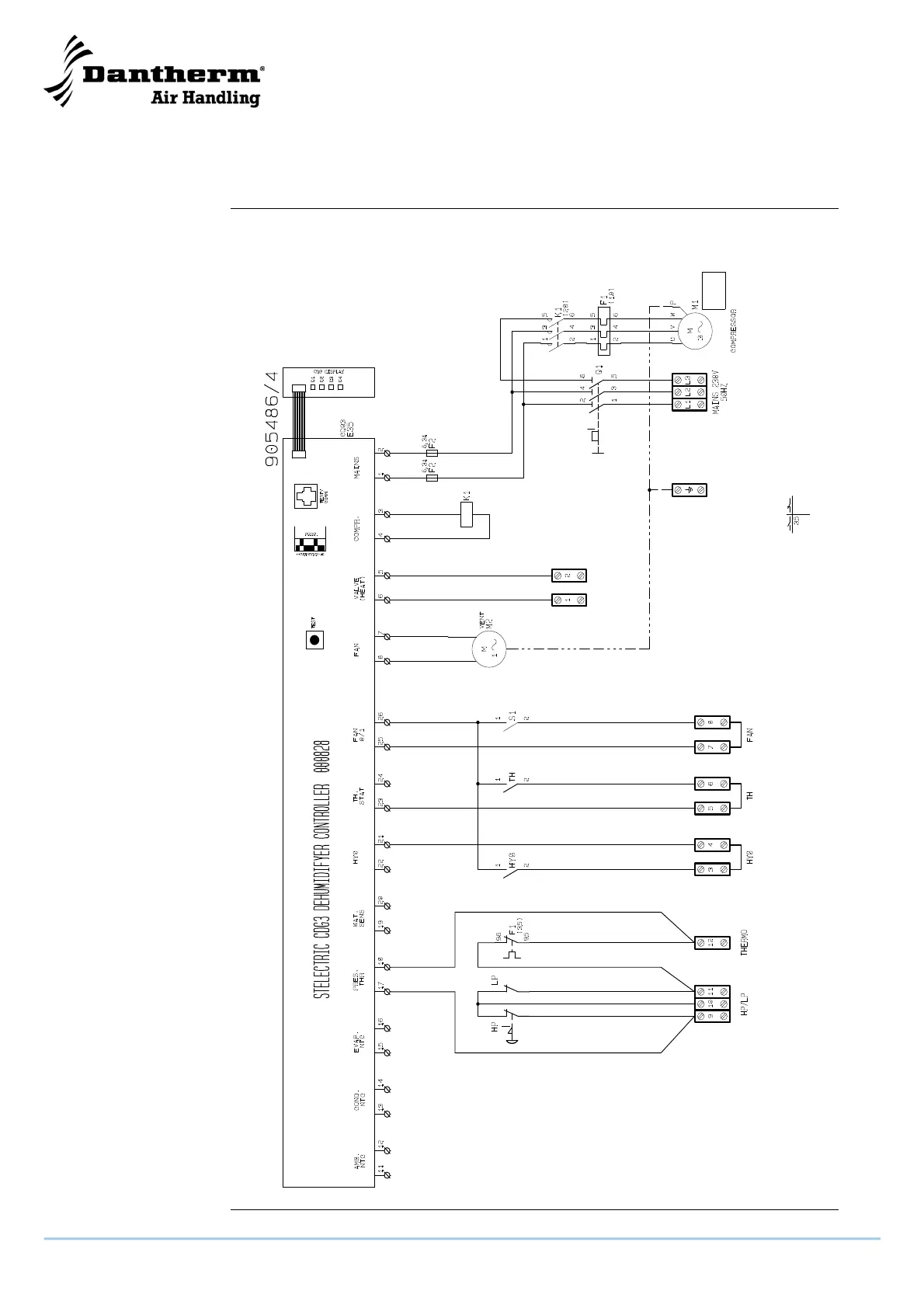
Eldiagram/Wiring diagram/Schaltplan/Schéma électrique,
Схема соединений/Schema elettrico, CDP 125 & CDP 165
Diagram
Схема
CDP125 & CDP 165 - 3 x 230 V/50 Hz
CDP125 & CDP 165 - 3 x 230 V/50 Гц

Table of Contents

Other manuals for Dantherm cdp 75

Related product manuals