EasyManua.ls Logo

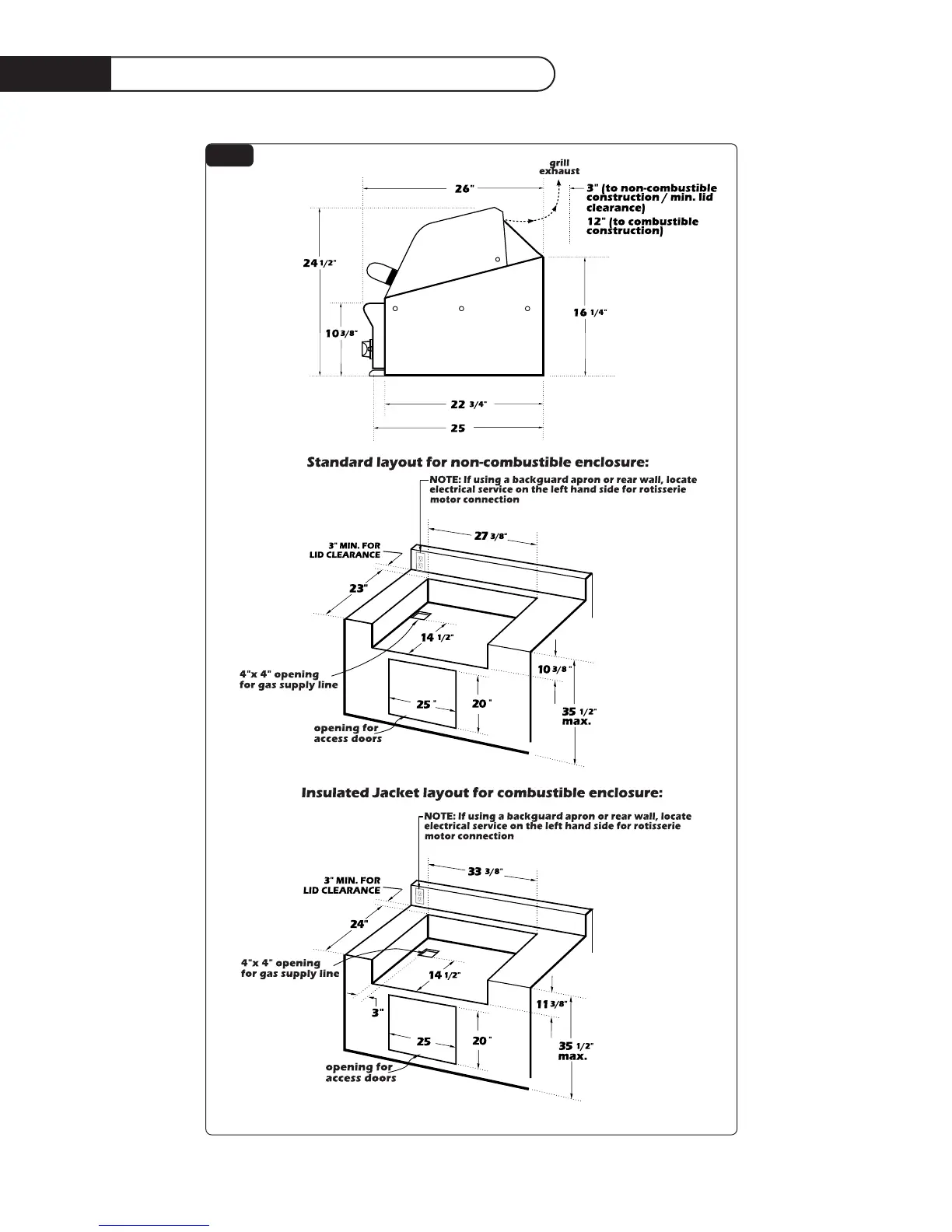
DCS BG27-BQL - Built-In Construction Details; Standard Layout for Non-Combustible Enclosure; Insulated Jacket Layout for Combustible Enclosure

DCS BG27-BQL
32 pages
Print Icon
To Next Page IconTo Next Page
To Next Page IconTo Next Page
To Previous Page IconTo Previous Page
To Previous Page IconTo Previous Page
Loading...
10
Built–In Construction Details
"
"
FIG.04

Related product manuals