EasyManua.ls Logo

DEEP SEA ELECTRONICS DSECONTROL DSE7320 - TYPICAL WIRING DIAGRAMS

DEEP SEA ELECTRONICS DSECONTROL DSE7320
78 pages
Print Icon
To Next Page IconTo Next Page
To Next Page IconTo Next Page
To Previous Page IconTo Previous Page
To Previous Page IconTo Previous Page
Loading...
DSE Model 7000 Series Control & Instrumentation System Operators Manual
Part No. 057-074 7000 Series OPERATING MANUAL ISSUE 2 02/05/2008 ADM
25
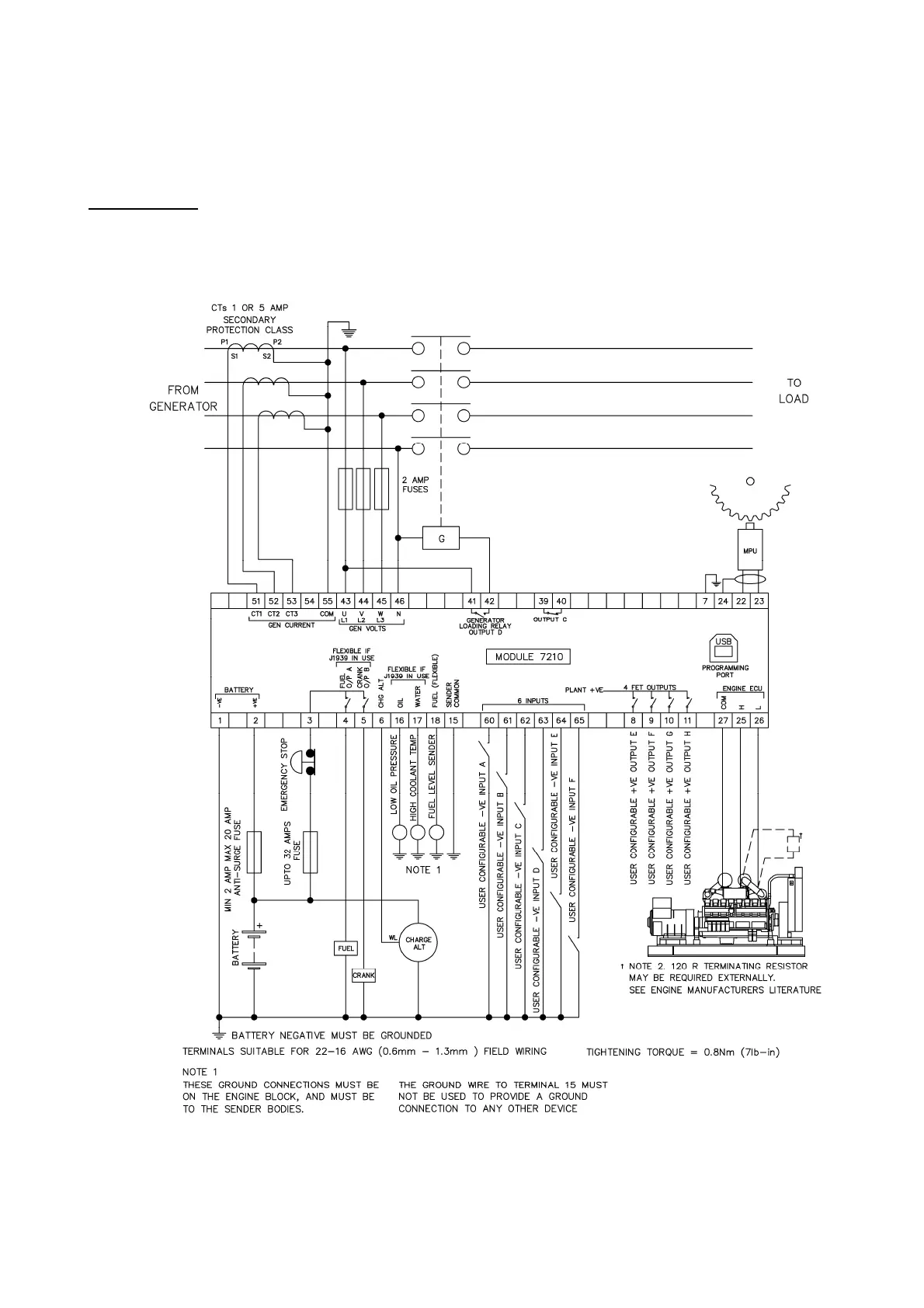
4.3 TYPICAL WIRING DIAGRAMS
4.3.1 7210 AUTOSTART CONTROLLER
3 phase, 4 wire

Table of Contents

Related product manuals