EasyManua.ls Logo

Deister electronic proxSafe maxx - Wandmontage des Kabinetts

Default Icon
24 pages
Print Icon
To Next Page IconTo Next Page
To Next Page IconTo Next Page
To Previous Page IconTo Previous Page
To Previous Page IconTo Previous Page
Loading...
proxSafe maxx
V08/05/08
maxx_guide_installation_de-en_v080508
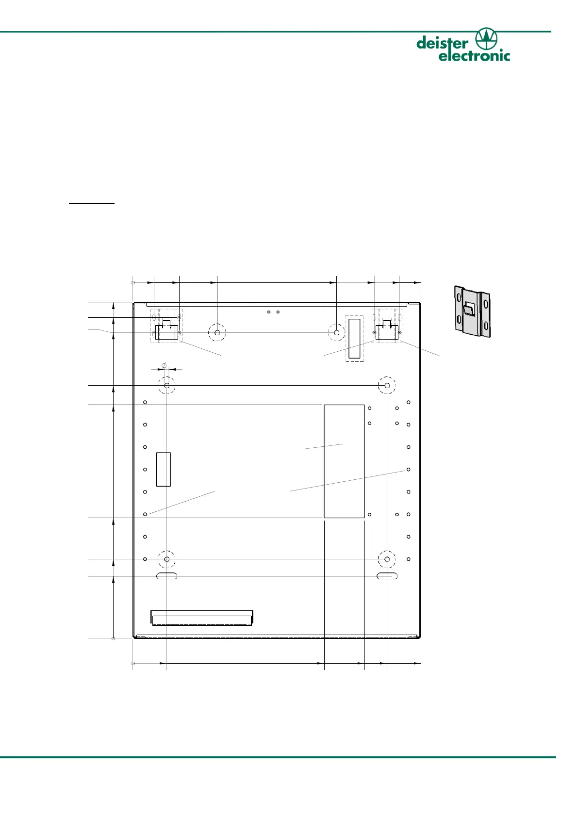
6. Wandmontage des Kabinetts
Zur ersten Fixierung des Kabinetts an der Wand sind die mitgelieferten Wandhaken zu
benutzen (siehe Zeichnung). Montieren Sie die Wandhaken an der Wand und hängen Sie
das Kabinett ein. Zur abschließenden Fixierung sind die vorgesehen Befestigungslöcher zu
benutzen. Es sind insgesamt sechs (6) Löcher von je 8 mm Durchmesser für die
Wandmontage vorgesehen (siehe Zeichnung).
Hinweis:
Um den notwendigen Spielraum bei der Wandmontage des Kabinetts zu behalten, ist es
hilfreich, Schrauben mit nur 6 mm Durchmesser zu verwenden.
600
573
546
Position der Wandhaken
8
Position of wall mounting hooks
Wandhaken
hook for wall mounting
451,5
417
Anschlussöffnung
opening for cabeling
Terminalbefestigung
terminal mounting
215
141,5
111,5
0
0
0
37,5
60
82,5
150
341
363
413
453
513
513

Other manuals for Deister electronic proxSafe maxx