EasyManua.ls Logo

Deister electronic proxSafe maxx - Mount Cabinet to Wall

Default Icon
24 pages
Print Icon
To Next Page IconTo Next Page
To Next Page IconTo Next Page
To Previous Page IconTo Previous Page
To Previous Page IconTo Previous Page
Loading...
proxSafe maxx
V08/05/08
maxx_guide_installation_de-en_v080508
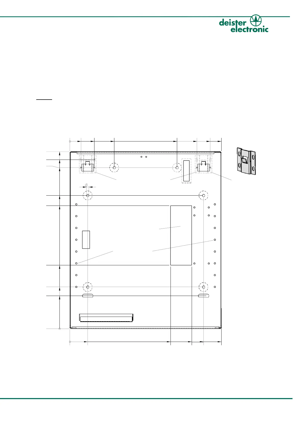
6. Mount Cabinet to Wall
For a first adjustment of the cabinet to the wall, please use the provided wall hooks (see
drawing). Mount them to the wall and hook in the cabinet. For the final wall assembly the
prefabricated boreholes are to be used. There are six (6) holes of 8 mm diameter for fixing
the proxSafe cabinet to the wall.
Note:
In order to keep some tolerance for adjustment of the cabinet at the wall, we
recommend screws with 6mm diameter.
600
573
546
Position der Wandhaken
8
Position of wall mounting hooks
Wandhaken
hook for wall mounting
451,5
417
Anschlussöffnung
opening for cabeling
Terminalbefestigung
terminal mounting
215
141,5
111,5
0
0
0
37,5
60
82,5
150
341
363
413
453
513
513

Other manuals for Deister electronic proxSafe maxx