EasyManua.ls Logo

Delta Electronics AC Motor Drive VFD-EL

Delta Electronics AC Motor Drive VFD-EL
209 pages
To Next Page IconTo Next Page
To Next Page IconTo Next Page
To Previous Page IconTo Previous Page
To Previous Page IconTo Previous Page
Loading...
Chapter 3 Keypad and Start Up|
Revision August 2008, 2ELE, V1.02 3-5
3.5 Trial Run
You can perform a trial run by using digital keypad with the following steps. by following steps
1. Setting frequency to F5.0 by pressing
.
2. If you want to change direction from forward running to reverse running: 1. press
MODE
key to find FWD. 2. press UP/DOWN key to REV to finish changing direction.
Operation
Method
Frequency Source Operation Command Source
Operate from
the
communication
When setting communication by the PC, it needs to use VFD-USB01 or IFD8500
converter to connect to the PC.
Refer to the communication address 2000H and 2101H setting for details.
* Don't apply the mains voltage directly
to above terminals.
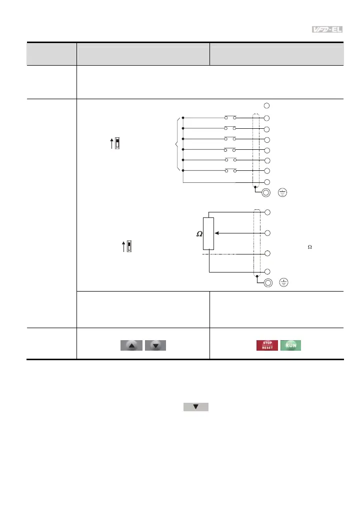
E
MI1
MI2
MI3
MI4
MI6
MI5
DCM
+24V
FWD/Stop
REV/Stop
Multi-step 1
Multi-step 2
Multi-step 3
Multi-step 4
Digital Signal Common
Factory
setting
Sw1
NPN
PNP
Factory setting:
NPN Mode
A
VI
A
CI/AVI
ACM
+10V
5K
3
2
1
Power supply
+10V 3mA
Master Frequency
0 to 10V 47K
Analog Signal Common
E
Sw2
AVI
ACI
Factory setting:
ACI Mode
4-20mA/0-10V
Operate from
external signal
MI3-DCM (Set Pr.04.05=10)
MI4-DCM (Set Pr.04.06=11)
External terminals input:
MI1-DCM (set to FWD/STOP)
MI2-DCM (set to REV/STOP)
Operate from
the digital
keypad

Table of Contents

Related product manuals