EasyManua.ls Logo

Delta C2000 Series - Frame D0-2

Delta C2000 Series
22 pages
Print Icon
To Next Page IconTo Next Page
To Next Page IconTo Next Page
To Previous Page IconTo Previous Page
To Previous Page IconTo Previous Page
Loading...
Chapter 1 IntroductionC2000 Series
1-11
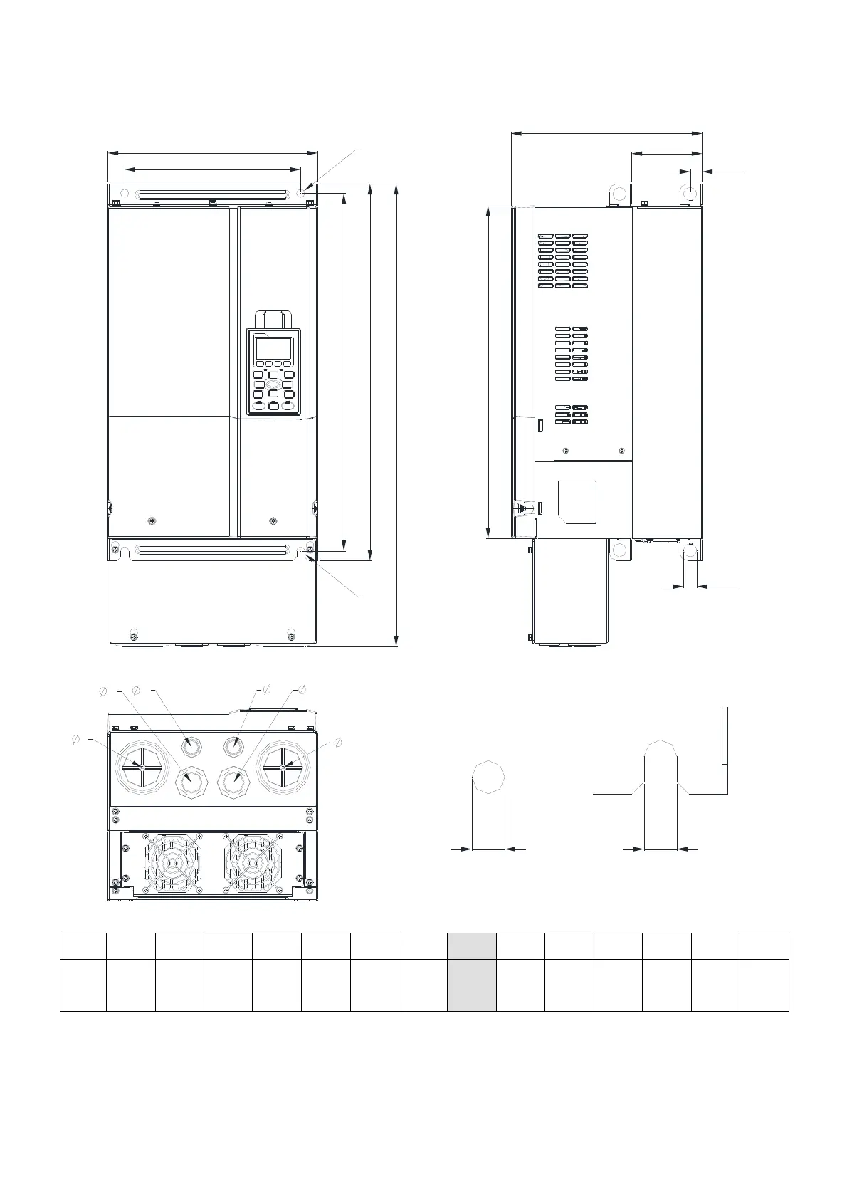
Frame D0
D0-2: VFD370C43U; VFD450C43U;
W
W1
H
H1
H2
SEE DETAIL A
SEE DETAIL B
D
D1
S2
D2
H3
S1
S1
DETAIL A
(MOUNTING HOLE)
DETAIL B
(MOUNTING HOLE)
1
2
3
3
2
1
Unit: mm [inch]
Frame
W H D W1 H1 H2 H3
D1* D2 S1 S2 Φ1 Φ2 Φ3
D0-2
280.0
[11.02]
614.4
[24.19]
255.0
[10.04]
235.0
[9.25]
500.0
[19.69]
475.0
[18.70]
442.0
[17.40]
94.2
[3.71]
16.0
[0.63]
11.0
[0.43]
18.0
[0.71]
62.7
[2.47]
34.0
[1.34]
22.0
[0.87]
D1*: Flange mounting

Other manuals for Delta C2000 Series

Related product manuals