EasyManua.ls Logo

Delta DPM-C510 - Page 18

Delta DPM-C510
46 pages
Print Icon
To Next Page IconTo Next Page
To Next Page IconTo Next Page
To Previous Page IconTo Previous Page
To Previous Page IconTo Previous Page
Loading...
Chapter 3 Installation
3-3
3_
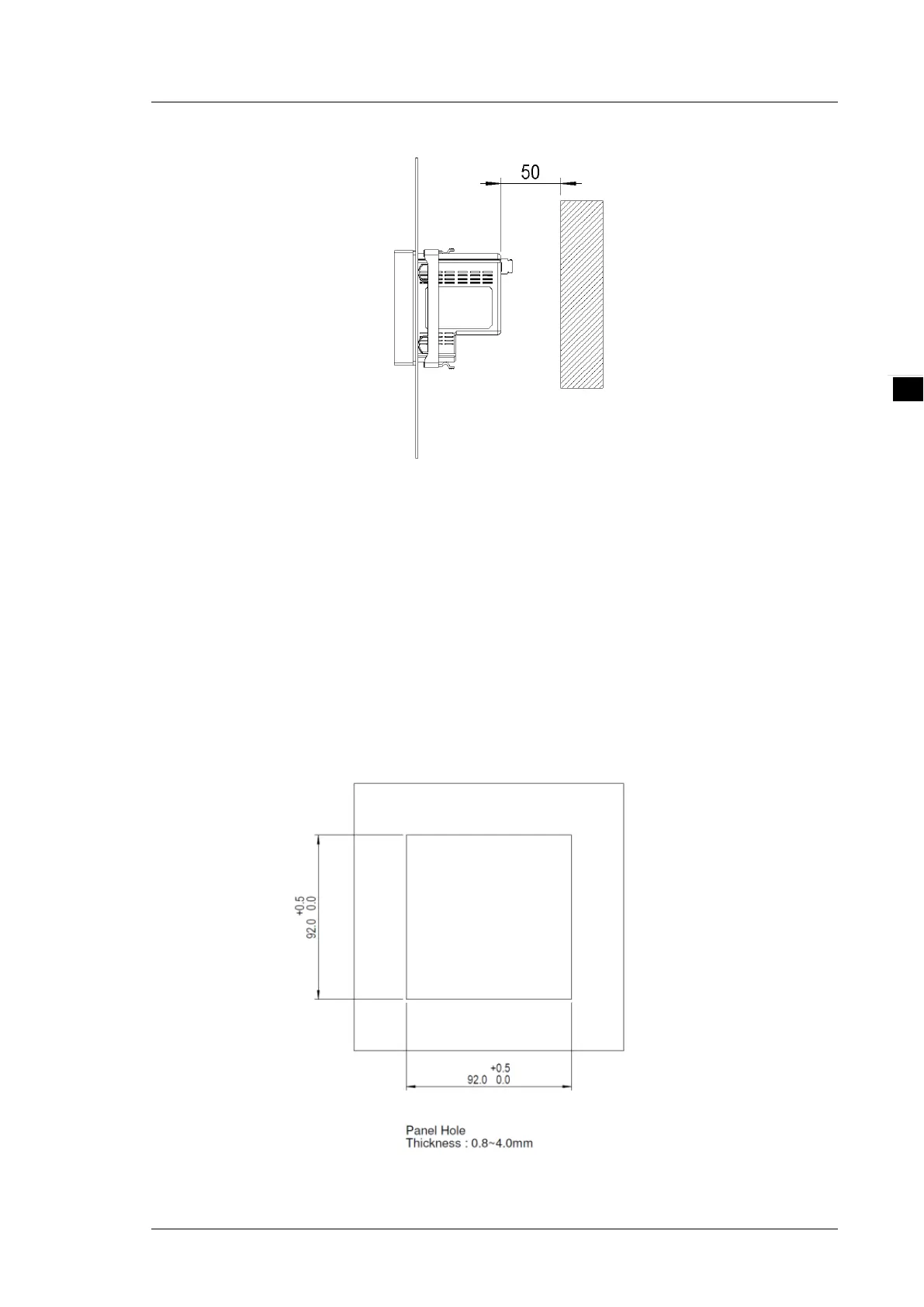
Cabinet installation
1. For easier handling during mounting and dismounting, the mounting brackets and accessories are
provided with the multi-function meter for the fixed installation
2. The dimension of the mounting hole is 92 mm * 92 mm in size. (Refer to the following description of
mounting hole dimension).
3. Slide the mounting bracket into the slot. The maximum panel thickness should be 4.0 mm.
*Note: Install on a flat mounting plane.
Mounting Hole Dimensions
Unit: mm

Related product manuals