EasyManua.ls Logo

Delta NC200 - Page 17

Delta NC200
Print Icon
To Next Page IconTo Next Page
To Next Page IconTo Next Page
To Previous Page IconTo Previous Page
To Previous Page IconTo Previous Page
Loading...
简中-5
安装环境条件
操作温度:0°C ~ 55°C32°F ~ 131°F
长时间的运转的环境温度建议保持在 45°C 以下,以确保产品的可靠性能;若环境温度超过
45°C 以上时,请设置于通风条件符合且无过热危险的配电箱内。并注意机器的振动是否会影
响配电箱的电子装置
为使 NC 系列控制器能够符合本公司保固范围以及日后的维护,安装时务必注意下列事项
产品适合的安装环境必须为:无发高热装置、无水滴、蒸气、灰尘及油性灰尘之场所;
无腐蚀、易燃性之气、液体之场所;无漂浮性的尘埃及金属微粒之场所;坚固无振动
无电磁噪声干扰之场所。
安装地点之温度与湿度请勿超过规格所规定之范围。
安装方式及空间
NC 系列控制器必须垂直安装于干燥且坚固、符合 NEMA 标准的平台。为了使通风及散热循
环效果良好,与其上下左右及相邻的物品和挡板()必须保持足够空间(建议值为 50 mm
2 英吋),并且不可封住控制器的吸排气孔,请注意过热会造成控制器故障。
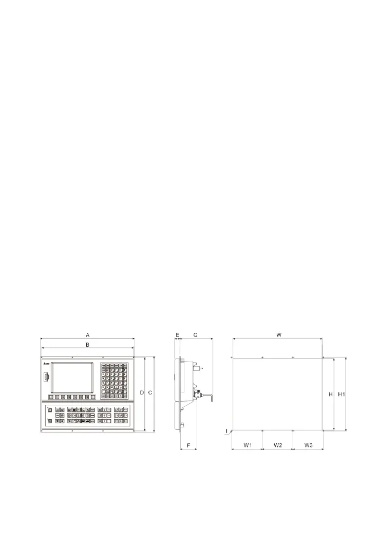
产品尺寸
NC200A-LI-A_ 尺寸标记

Related product manuals