EasyManua.ls Logo

Delta NC200 - Page 6

Delta NC200
Print Icon
To Next Page IconTo Next Page
To Next Page IconTo Next Page
To Previous Page IconTo Previous Page
To Previous Page IconTo Previous Page
Loading...
繁中-5
安裝環境條件
操作溫度:0°C ~ 55°C32°F ~ 131°F
長時間的運轉的環境溫度建議保持在 45°C 以下,以確保產品的可靠性能;若環境溫度超過
45°C 以上時請設置於通風條件符合且無過熱危險的配電箱內並注意機器的振動是否會影
響配電箱的電子裝置
為使 NC 系列控制器能夠符合本公司保固範圍以及日後的維護,安裝時務必注意下列事項
產品適合的安裝環境必須為無發高熱裝置無水蒸氣灰塵及油性灰塵之場所;
無腐蝕易燃性之氣液體之場所無漂浮性的塵埃及金屬微粒之場所堅固無振動、
無電磁雜訊干擾之場所。
安裝地點之溫度與濕度請勿超過規格所規定之範圍。
安裝方式及空間
NC 系列控制器必須垂直安裝於乾燥且堅固、符合 NEMA 標準的平台。為了使通風及散熱循
環效果良好,與其上下左右及相鄰的物品和擋板()必須保持足夠空間(建議值為 50 mm
2 英吋),並且不可封住控制器的吸排氣孔,請注意過熱會造成控制器故障。
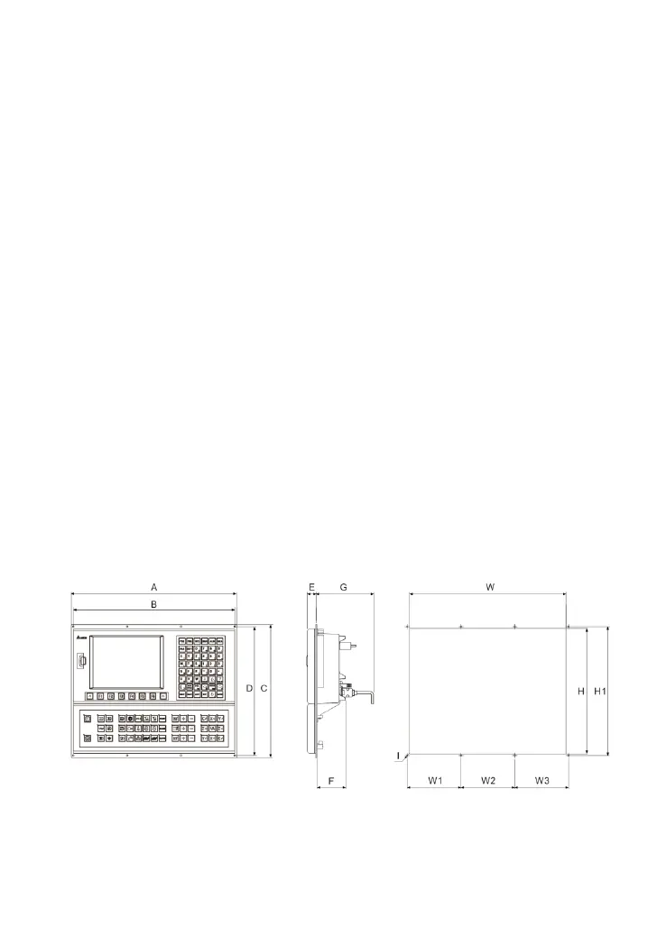
產品尺寸
NC200A-LI-A_ 尺寸標記

Related product manuals