EasyManua.ls Logo

Delta VFD015CB43A-20 - Page 35

Delta VFD015CB43A-20
363 pages
Print Icon
To Next Page IconTo Next Page
To Next Page IconTo Next Page
To Previous Page IconTo Previous Page
To Previous Page IconTo Previous Page
Loading...
Chapter 5 Main Circuit Terminals|C200 Series
5-5
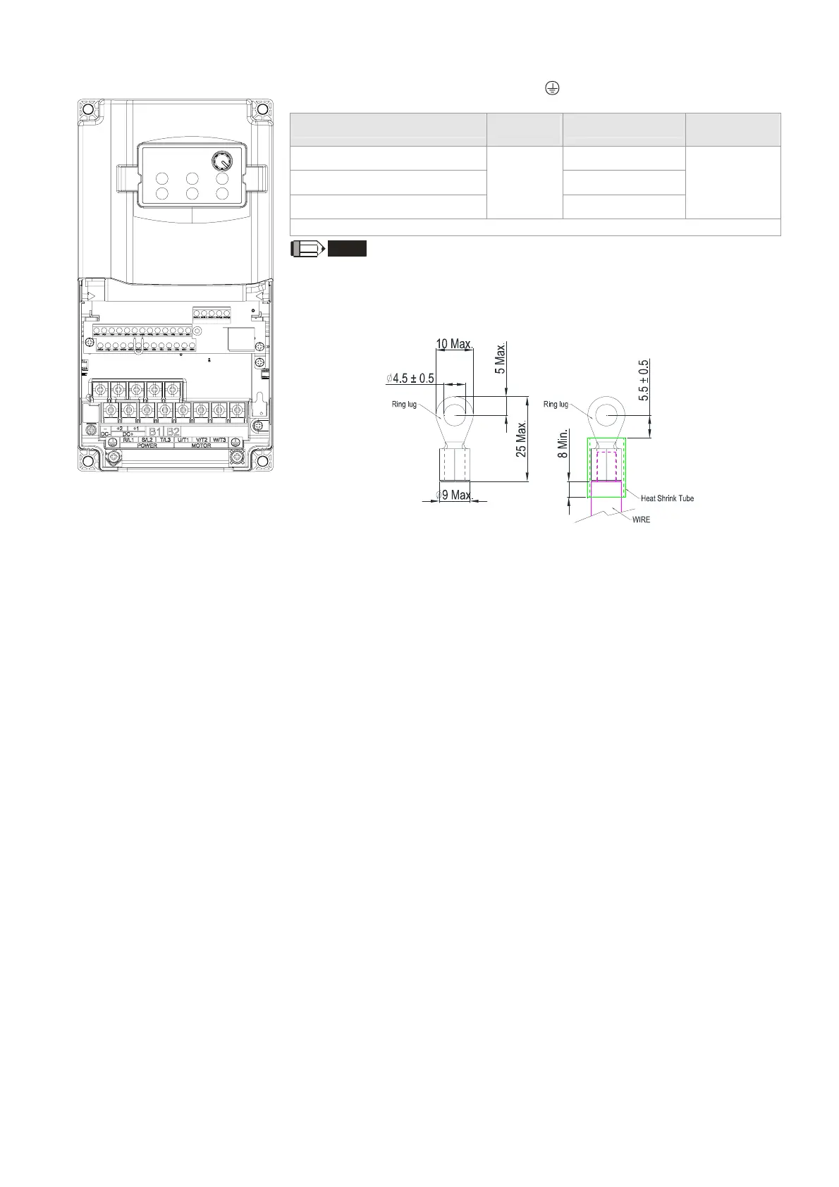
Frame A
Main circuit terminals :
R/L1, S/L2, T/L3, U/T1, V/T2, W/T3,
, DC+(+2,+1), DC-, B1, B2
Models
Max. Wire
Gauge
Min. Wire Gauge
Torque
(±10%)
VFD040CB43A-20/-21/-21M 10 AWG (5.3mm
2
)
VFD055CB43A-20/-21/-21M 10 AWG (5.3mm
2
)
VFD075CB43A-20/-21/-21M
8 AWG
(8.4mm
2
)
8 AWG (8.4mm
2
)
M4
20kg-cm
(17.4 lb-in.)
(1.96Nm)
UL installations must use 600V, 75 or 90 wire. Use copper wire only.
NOTE
Figure 1 shows the terminal specification.
Figure 2 shows the specification of insulated heat shrink tubing that comply with
UL (600V, YDPU2).
Figure 1 Figure 2
Call 1(800)985-6929 for Sales
deltaacdrives.com
sales@deltaacdrives.com
Call 1(800)985-6929 for Sales
deltaacdrives.com
sales@deltaacdrives.com

Related product manuals