EasyManua.ls Logo

Delta VFD075CB43A-21 - Page 14

Delta VFD075CB43A-21
363 pages
Print Icon
To Next Page IconTo Next Page
To Next Page IconTo Next Page
To Previous Page IconTo Previous Page
To Previous Page IconTo Previous Page
Loading...
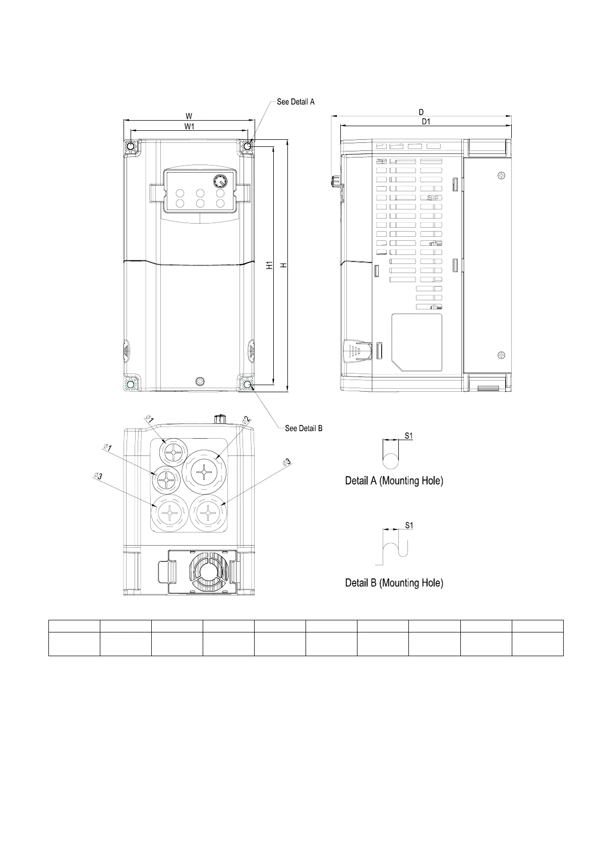
Chapter 1 Introduction|C200 Series
1-11
Frame A
VFD040CB43A-20; VFD055CB43A-20; VFD075CB43A-20;
VFD040CB43A-21; VFD055CB43A-21; VFD075CB43A-21
Unit: mm [inch]
W H D W1 H1 D1 S1 Φ1 Φ2 Φ3
130.0
[5.12]
250.0
[9.84]
179.0
[7.05]
116.0
[4.57]
236.0
[9.29]
170.0
[6.69]
6.2
[0.24]
22.2
[0.87]
34.0
[1.34]
28.0
[1.10]
Call 1(800)985-6929 for Sales
deltaacdrives.com
sales@deltaacdrives.com
Call 1(800)985-6929 for Sales
deltaacdrives.com
sales@deltaacdrives.com

Related product manuals