EasyManua.ls Logo

Delta VFD5A5ME43ANNAA - Frame C

Delta VFD5A5ME43ANNAA
403 pages
Print Icon
To Next Page IconTo Next Page
To Next Page IconTo Next Page
To Previous Page IconTo Previous Page
To Previous Page IconTo Previous Page
Loading...
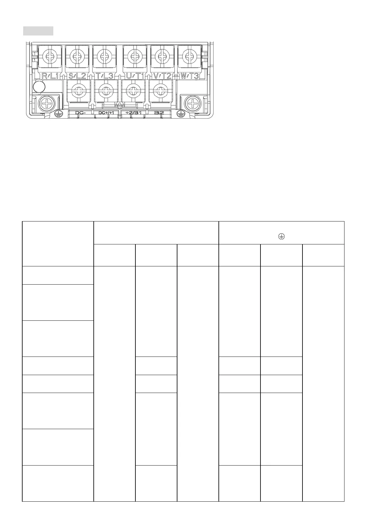
Chapter 5 Main Circuit TerminalsME300
5-8
Frame C
If you install at Ta 50°C above environment, use copper wires that have a voltage rating of
600 V and are temperature resistant to 90°C or above.
If you install at Ta 50°C environment, use copper wires that have a voltage rating of 600 V
and are temperature resistant to 75°C or 90°C.
To be UL installation compliant, you must use copper wires when installing. The wire gauge
is based on a temperature resistance of 75°C, in accordance with UL requirements and
recommendations.
Do not reduce the wire gauge when using high-temperature resistant wires.
Models
Main Circuit Terminals
R/L1, S/L2, T/L3, U/T1, V/T2, W/T3,
DC-, DC+/+1, +2/B1, B2
Terminals
Max. Wire
Gauge
Min. Wire
Gauge
Screw &
Torque
(±10%)
Max. Wire
Gauge
Min. Wire
Gauge
Screw &
Torque
(±10%)
VFD4A8ME11ANNAA
10 mm
2
[8 AWG]
10 mm
2
[8 AWG]
M4
20 Kg-cm
[17.4 lb-in.]
[1.96 Nm]
10 mm
2
[8 AWG]
10 mm
2
[8 AWG]
M4
20 Kg-cm
[17.4 lb-in.]
[1.96 Nm]
VFD4A8ME11ANSAA
VFD7A5ME21ANNAA
VFD7A5ME21AFNAA
VFD7A5ME21ANSAA
VFD7A5ME21AFSAA
VFD11AME21ANNAA
VFD11AME21AFNAA
VFD11AME21ANSAA
VFD11AME21AFSAA
VFD11AME23ANNAA
6 mm
2
[10 AWG]
6 mm
2
[10 AWG]
6 mm
2
[10 AWG]
VFD11AME23ANSAA
VFD17AME23ANNAA
10 mm
2
[8 AWG]
10 mm
2
[8 AWG]
10 mm
2
[8 AWG]
VFD17AME23ANSAA
VFD5A5ME43ANNAA
2.5 mm
2
[14 AWG]
2.5 mm
2
[14 AWG]
2.5 mm
2
[14 AWG]
VFD5A5ME43AFNAA
VFD5A5ME43ANSAA
VFD5A5ME43AFSAA
VFD7A3ME43ANNAA
VFD7A3ME43AFNAA
VFD7A3ME43ANSAA
VFD7A3ME43AFSAA
VFD9A0ME43ANNAA
4 mm
2
[12 AWG]
4 mm
2
[12 AWG]
4 mm
2
[12 AWG]
VFD9A0ME43AFNAA
VFD9A0ME43ANSAA
VFD9A0ME43AFSAA

Table of Contents

Related product manuals