EasyManua.ls Logo

Deltech SPX Flow DSHD Series - General Arrangement: DSHD-13

Deltech SPX Flow DSHD Series
32 pages
Print Icon
To Next Page IconTo Next Page
To Next Page IconTo Next Page
To Previous Page IconTo Previous Page
To Previous Page IconTo Previous Page
Loading...
19
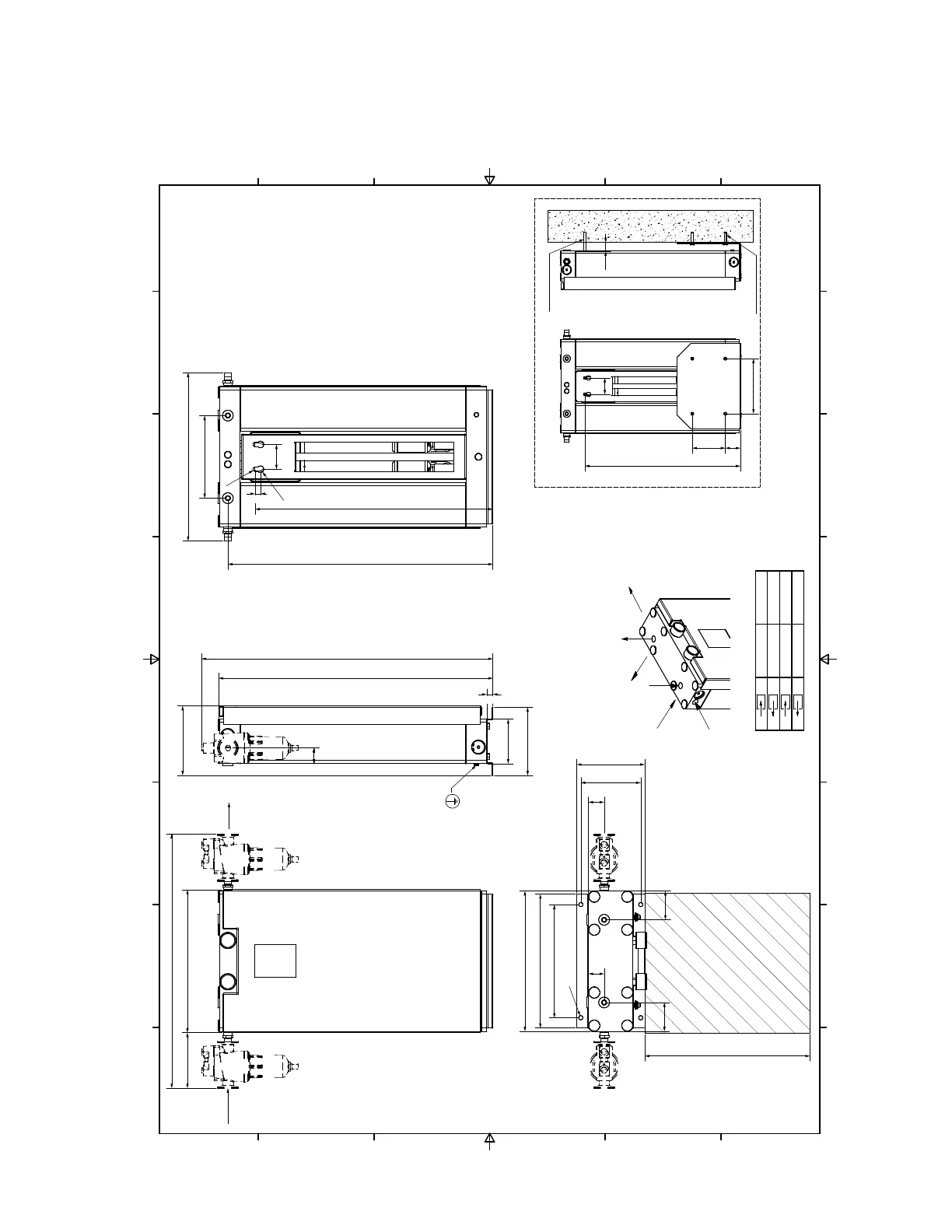
11.2 General Arrangement: DSHD-13
1
1
2
2
3
3
4
4
5
5
6
6
7
7
8
8
A A
B B
C C
D D
E E
F F
Option
Maintenance Space
5.3/4
6.1/2
2.3/4
2.3/4
10.3/4
12.3/4
13.3/8
4xØ3/8
1-1/2
13.5/8
6.5/8
1-1/2
5/8
4.1/4
6.1/2
22.5/8
1/2
Ø5/8
Ø3/8
2.3/8
25.1/4
7.7/8
26.1/8
27.3/4
5.25
24.1/4
1.1/2
C
D
1.1/4
7.7/8
2.1/8
4.3/4
22.1/4
2.3/8
2x Ø5/16 x 3.15/16
4x Ø5/16 x 3.15/16
>15.3/4
16.1/8
A
B
A
A
B
B
A
B
C
D
NPT*
NPT*
NPT*
NPT*
1/2” NPT
1/2” NPT
1/2” NPT
1/2” NPT
* ANSI B1.20.1

Table of Contents