EasyManua.ls Logo

Deltech SPX Flow DSHD Series - General Arrangement: DSHD-18

Deltech SPX Flow DSHD Series
32 pages
Print Icon
To Next Page IconTo Next Page
To Next Page IconTo Next Page
To Previous Page IconTo Previous Page
To Previous Page IconTo Previous Page
Loading...
20
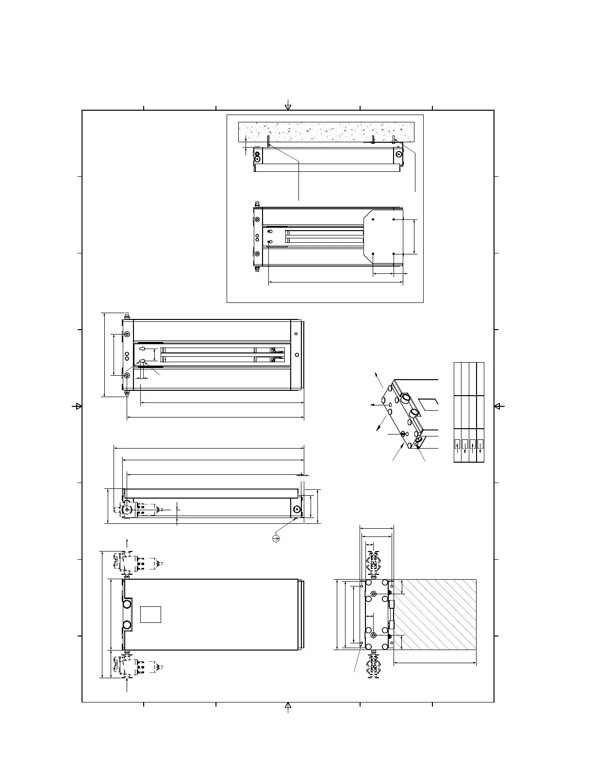
11.3 General Arrangement: DSHD-18
1
1
2
2
3
3
4
4
5
5
6
6
7
7
8
8
A A
B B
C C
D D
E E
F F
Option
Maintenance Space
13.5/8
108
165
15
1.1/2
33.7/8
6.5/8
31.1/4
33.7/8
7.7/8
1.1/2
2.3/4
2.3/4
10.3/16
4xØ3/8
12.3/4
13.3/8
5.11/16
6.1/2
36.3/8
C
D
5.5/16
1.1/2
24.1/4
1.1/4
30.13/16
2.3/16
4.3/4
7.7/8
4x Ø5/16 x 3.15/16
2x Ø5/16 x 3.15/16
>15.3/4
16.1/16
34.3/4
1/2
Ø5/8
Ø3/8
2.3/8
A
B
A
A
B
B
A
B
C
D
NPT*
NPT*
NPT*
NPT*
1/2” NPT
1/2” NPT
1/2” NPT
1/2” NPT
* ANSI B1.20.1

Table of Contents

Related product manuals