EasyManua.ls Logo

DeWalt DXCM804 - Page 45

DeWalt DXCM804
94 pages
Print Icon
To Next Page IconTo Next Page
To Next Page IconTo Next Page
To Previous Page IconTo Previous Page
To Previous Page IconTo Previous Page
Loading...
45
Français
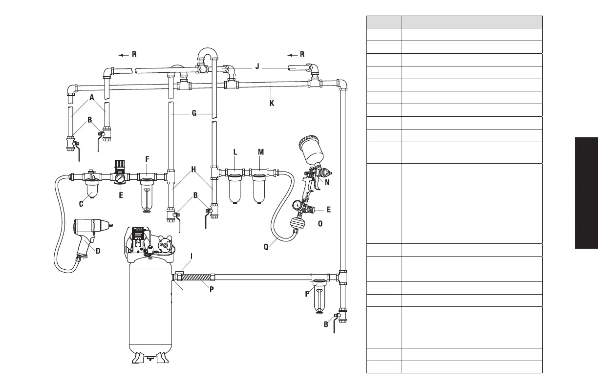
LA SECTION SYSTÈME TYPIQUE DE DISTRIBUTION D’AIR
S
Pièce Description
A
Tuyaux de vidange
B
Robinets de vidange
C
Lubrificateur
D
Outil pneumatique
E
Régulateur
F
Filtre / Piège à humidité
G
Conduites d’utilisation d’air
H
Tuyaux d’évacuation de saleté
I
Vanne d’évacuation d’air
J
Les conduites d’alimentation
s’inclinent avec le débit d’air
K
Conduites de distribution d’air prin-
cipales - Inclinez le tuyau dans le
sens du débit d’air. L’eau de con-
densation s’écoule le long de la
surface inférieure des tuyaux vers
les tuyaux de vidange, empêchant
ainsi l’entrée d’eau dans les con-
duites d’alimentation.
L
Filtre de 5 microns
M
Filtre de .01 microns
N
Pistolet de pulvérisation
O
Boule filtre
P
Raccord flexible
Q
Pour des résultats optimums, - La
distance entre le compresseur et
le piège à humidité doit être aussi
longue que possible.
R
Débit d’air
S
Filtre d’admission d’air

Table of Contents

Related product manuals