EasyManua.ls Logo

DeWalt DXCM804 - Page 77

DeWalt DXCM804
94 pages
Print Icon
To Next Page IconTo Next Page
To Next Page IconTo Next Page
To Previous Page IconTo Previous Page
To Previous Page IconTo Previous Page
Loading...
77
Español
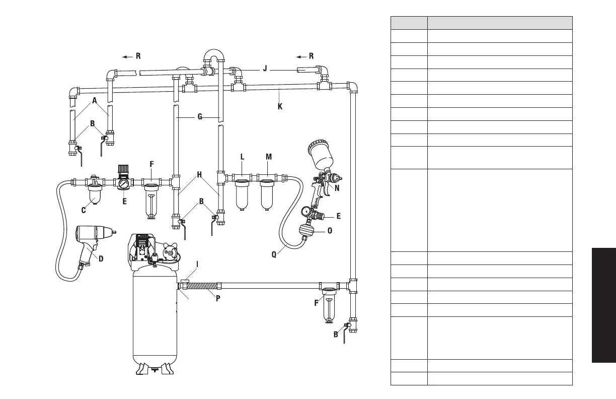
S
Pieza Descripción
A
Patas de drenaje
B
Válvulas de drenaje
C
Lubricador
D
Herramienta de aire
E
Regulador
F
Filtro / Colector de humedad
G
Líneas de uso de aire
H
Colectores de sedimentos
I
Válvula de descarga de aire
J
Las líneas alimentadoras se
inclinan con el flujo de aire
K
Líneas de distribución de aire prin-
cipales - Incline la tubería en el
sentido del flujo de aire. El conden-
sado de agua fluye a lo largo de
la parte inferior de la tubería hasta
las patas de drenaje, con lo cual
se impide que entre a las líneas
alimentadoras
L
Filtro de 5 micrones
M
Pistola rociadora
N
Ajustador de bola
O
Acoplamiento flexible
P
Raccord flexible
Q
Para lograr el mejor rendimiento -
La distancia entre el compresor y
el colector de humedad debería ser
lo más grande posible
R
Flujo de aire
S
Filtro de entrada de aire
SISTEMA TÍPICO DE DISTRIBUCIÓN DE AIRE

Table of Contents

Related product manuals