EasyManua.ls Logo

DeWalt DXGN4500 - Wiring Diagram and Electrical Schematic, DXGNR5700

DeWalt DXGN4500
56 pages
Print Icon
To Next Page IconTo Next Page
To Next Page IconTo Next Page
To Previous Page IconTo Previous Page
To Previous Page IconTo Previous Page
Loading...
Section 5 Electrical Data
44 Diagnostic Repair Manual
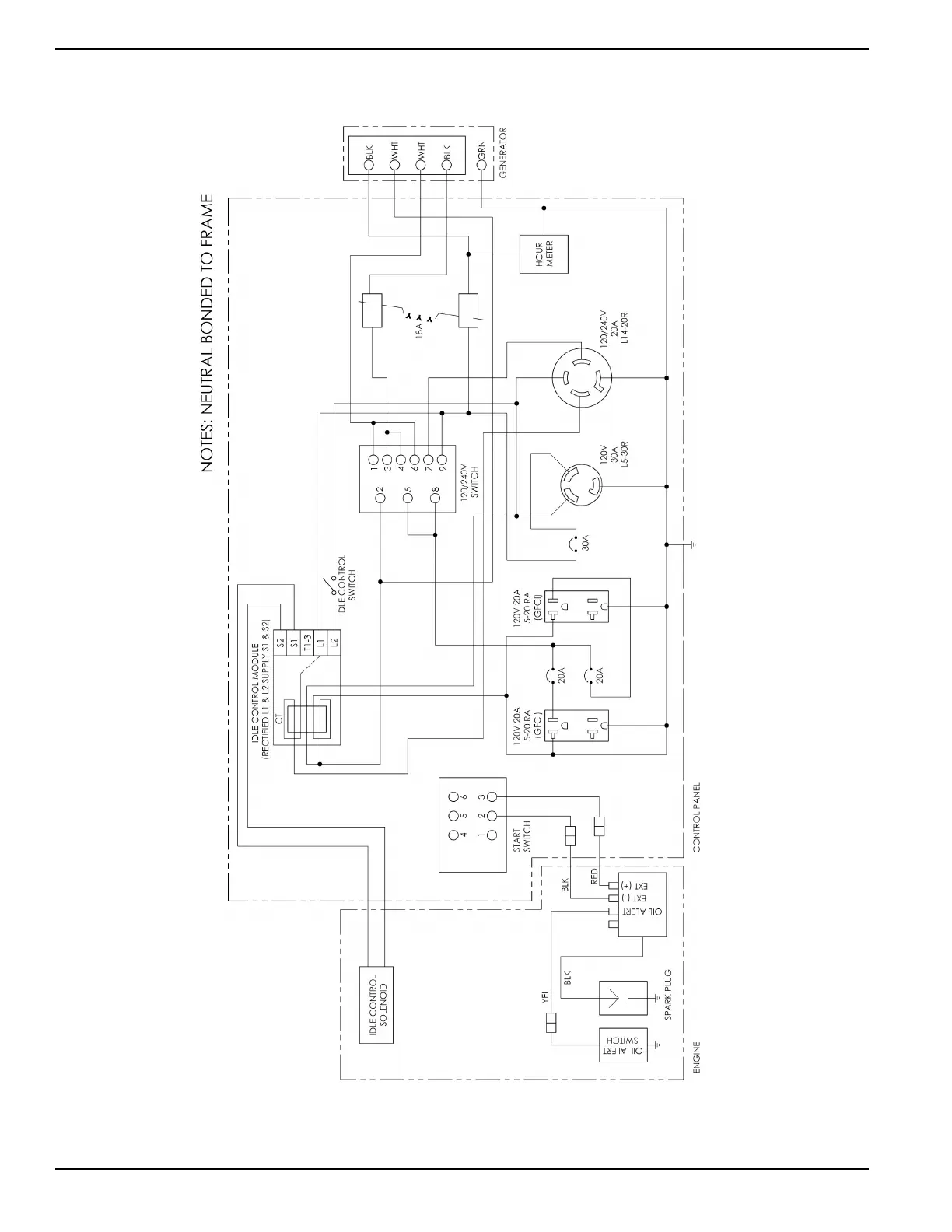
Wiring Diagram and Electrical Schematic, DXGN4500
004157

Table of Contents

Related product manuals