EasyManua.ls Logo

DeWalt DXGN4500 - Wiring Diagram and Electrical Schematic, DXGNR7000

DeWalt DXGN4500
56 pages
Print Icon
To Next Page IconTo Next Page
To Next Page IconTo Next Page
To Previous Page IconTo Previous Page
To Previous Page IconTo Previous Page
Loading...
Section 5 Electrical Data
Diagnostic Repair Manual 45
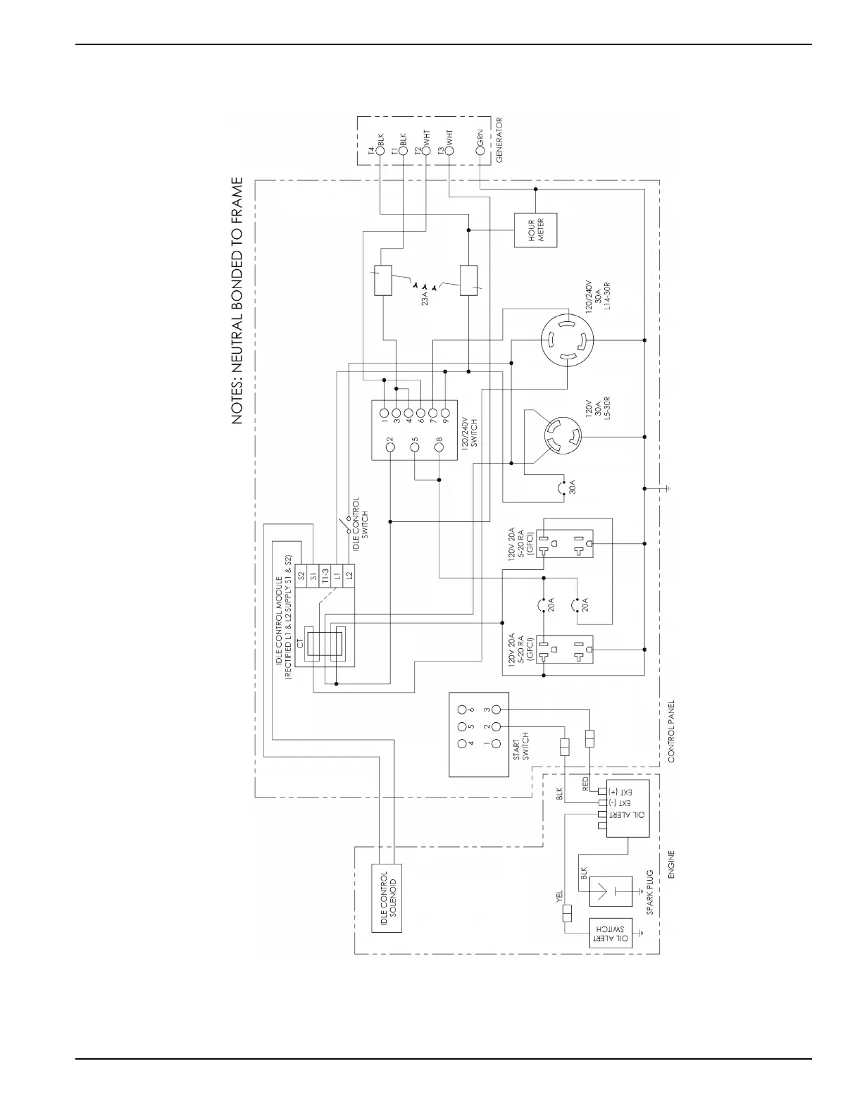
Wiring Diagram and Electrical Schematic, DXGN6000
004163

Table of Contents

Related product manuals