EasyManua.ls Logo

Dexter Laundry T600 - Trouble Shooting; Common Troubleshooting Solutions; Machine Does Not Start; Machine Will Not Accept and Count Coins

Dexter Laundry T600
98 pages
Print Icon
To Next Page IconTo Next Page
To Next Page IconTo Next Page
To Previous Page IconTo Previous Page
To Previous Page IconTo Previous Page
Loading...
CN (No Coin Acceptor) 20Lb. Express:
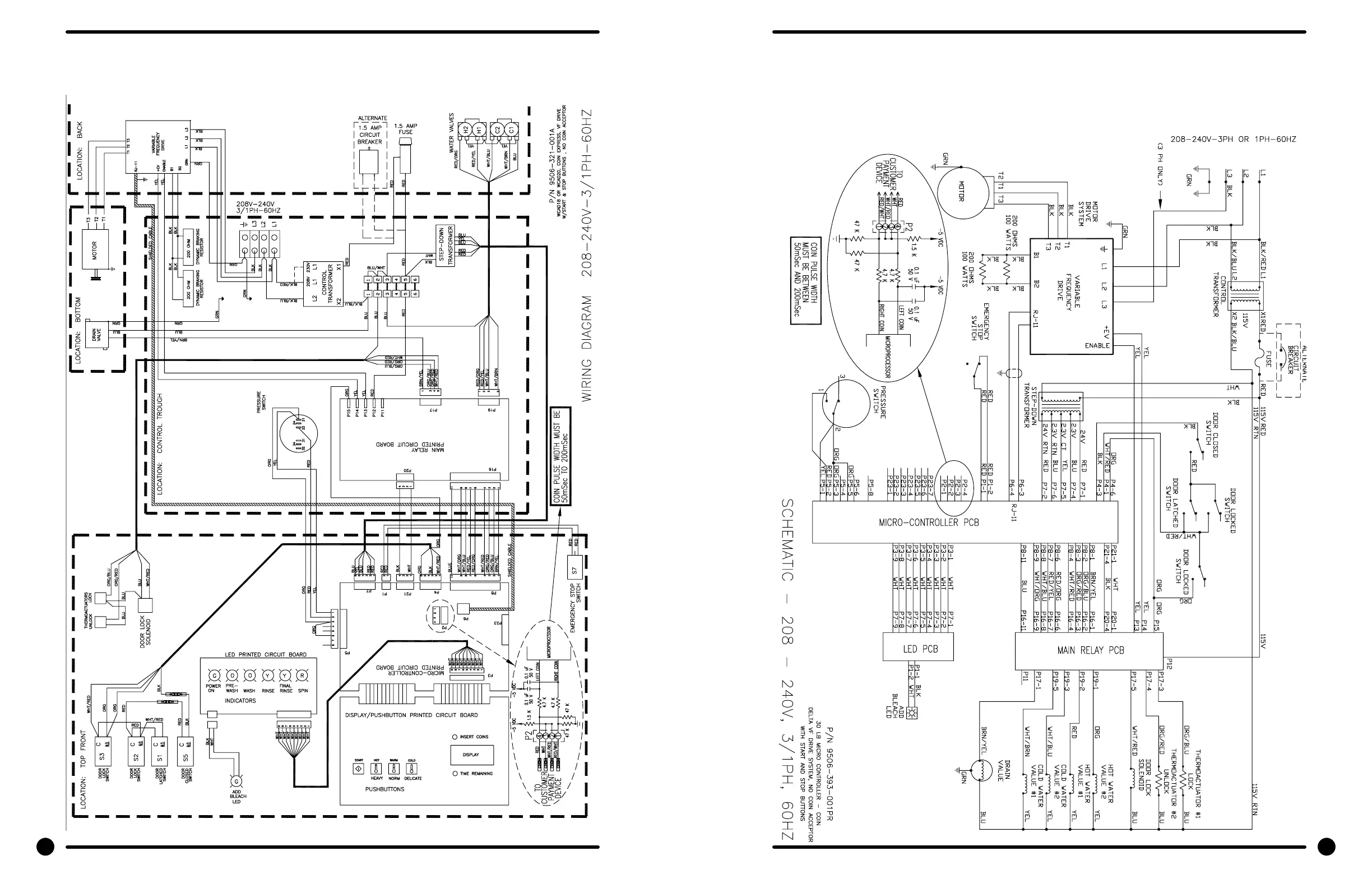
208-240 Wiring Diagram
30Lb. Express: Non-Express & Express:
CN (No Coin Acceptor) Schematic 208-240
74 75
Part # 8533-072-001 3/22 Part # 8533-072-001 3/22
Machine
Mounting
Installation
& Operation
Programming
Trouble-
shooting
Machine
Service
Electrical
Wiring
Parts
Data
Coin
Handling
50Hz
Parts
Maintenance
Service Elec.
Compnents

Table of Contents

Other manuals for Dexter Laundry T600

Related product manuals