EasyManua.ls Logo

Dexter Laundry T600 - Troubleshooting Machine Fault Errors; Fault F1: Door Failed to Close;Lock; Fault F2: Washer Tub Does Not Fill; Fault F3: Memory Error in Controller

Dexter Laundry T600
98 pages
Print Icon
To Next Page IconTo Next Page
To Next Page IconTo Next Page
To Previous Page IconTo Previous Page
To Previous Page IconTo Previous Page
Loading...
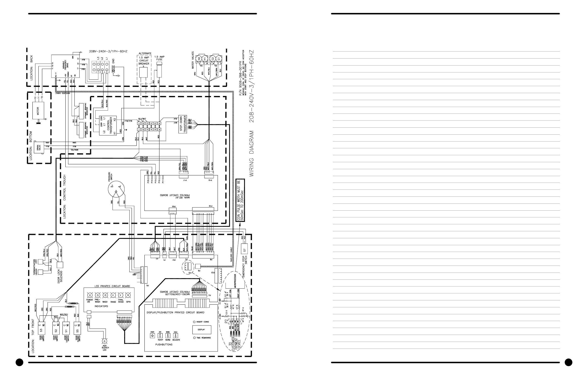
40Lb. Express: Non-Express CN (No Coin Acceptor)
Schematic 208-240 Volt Wiring Schematic
78 79
Part # 8533-072-001 3/22 Part # 8533-072-001 3/22
Notes
Machine
Mounting
Installation
& Operation
Programming
Trouble-
shooting
Machine
Service
Electrical
Wiring
Parts
Data
Coin
Handling
50Hz
Parts
Maintenance
Service Elec.
Compnents

Table of Contents

Other manuals for Dexter Laundry T600

Related product manuals