EasyManua.ls Logo

DIMOEL Kit ElectroDue - Antenne Externe

DIMOEL Kit ElectroDue
Print Icon
To Next Page IconTo Next Page
To Next Page IconTo Next Page
To Previous Page IconTo Previous Page
To Previous Page IconTo Previous Page
Loading...
FRANÇAIS
47
B
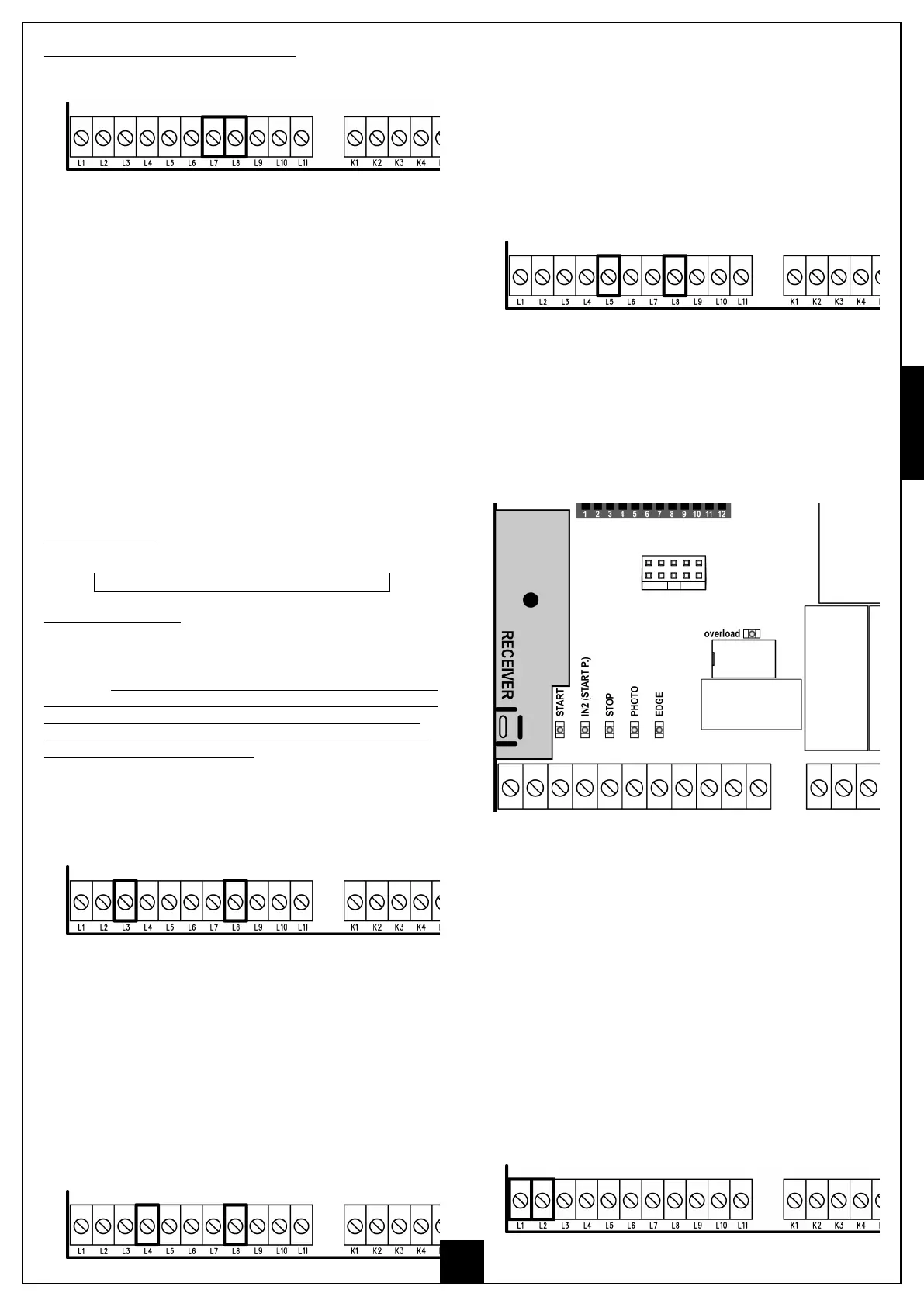
arre palpeuse en caoutchouc conducteur
:
Brancher les câbles de
la barre palpeuse entre les bornes L7 et L8 de l'armoire de
commande.
ATTENTION: le test de fonctionnement sur les barre
palpeuse est réservé aux barres palpeuses optiques et aux barres
palpeuses traditionnelles (seulement si équipées avec armoire de
commande prévue à cet effet).
NE PAS activer la fonction de test si l'on utilise des barres
palpeuses à caoutchouc conductible ou des barres
p
alpeuses traditionnelles non équipées avec armoire de
commande prévue pour le contrôle du fonctionnement.
REMARQUE: pour le branchement de barres palpeuses
optiques utiliser l'interface (code 35A024) prévue à cet effet en
désactivant le test de fonctionnement sur les barres palpeuses.
ENTRÉE DE START
L'entrée de START est conçue pour le branchement de dispositifs
avec contact normalement ouvert. La fonction dépend du mode
de fonctionnement programmé sur le dip-switch 4.
Modalité pas à pas
Des commandes successives de start causent dans l'ordre:
 ouverture  stop  fermeture  stop
Modalité "à inversion"
Le Start pendant l'ouverture cause la fermeture.
Le Start pendant la fermeture cause l'ouverture.
Le Start quand le portail est ouvert commande toujours la
fermeture; le seul cas cela ne se vérifie pas immédiatement est
quand la fermeture automatique est activée et le signal du départ
(start) en ouverture n'est pas accepté: dans ce cas spécifique le
start fait recommencer de zéro le comptage du temps de pause,
après lequel le portail se refermera.
Dans les deux modalités on peut sactiver la commande de Start
pendant l'ouverture du portail en intervenant sur le dip-switch 3.
Brancher les câbles du dispositif qui commande l'entrée de start
entre les bornes L3 et L8 de l'armoire de commande.
START PIÉTONNIER
Le start piétonnier, quand le portail est fermé, cause l'ouverture
partielle (environ moitié course) du seul vantail relié au moteur 1.
Des commandes successives de start piétonnier fonctionneront
selon la logique pas à pas.
Pendant un cycle piétonnier la commande de start cause
l'ouverture complète des deux vantaux.
Brancher les câbles du dispositif qui commande l'entrée de start
entre les bornes L4 et L8 de l'armoire de commande.
S
TOP
L'entrée de STOP est conçue pour le branchement de dispositifs
avec contact normalement ouvert.
L
a commande de STOP cause le blocage immédiat du portail.
La commande successive de START active le portail dans le sens
de marche opposé.
Si la commande de STOP est donnée pendant l'ouverture ou la
pause, on n'obtiendra pas la successive refermeture automatique.
Brancher les câbles du dispositif qui commande l'entrée de stop
entre les bornes L5 et L8 de l'armoire de commande.
RÉCEPTEUR EMBROCHABLE
L'armoire de commande est prévue pour le branchement d'un
récepteur de la série MR1 avec architecture superhétérodyne à
haute sensibilité.
ATTENTION: Avant d'exécuter les opérations suivantes
couper l'alimentation à l'armoire de commande. Faire bien
attention au sens de branchement des modules extractibles.
Le module récepteur MR1 est équipé de 4 canaux, à chacun on a
associé une commande de l'armoire City7:
CANAL 1
START
CANAL 2
START PIÉTONNIER
CANAL 3
STOP
CANAL 4
LUMIÈRE DE COURTOISIE
ATTENTION:
Pour la programmation des 4 canaux et des logiques de
fonctionnement, lire attentivement les notices jointes au
récepteur MR1.
ANTENNE EXTERNE
On conseille d'utiliser l'antenne externe pour pouvoir garantir la
portée radio maximale.
Brancher le pôle central de l'antenne à la borne L1 de l'armoire
et le blindage à la borne L2.

Related product manuals