EasyManua.ls Logo

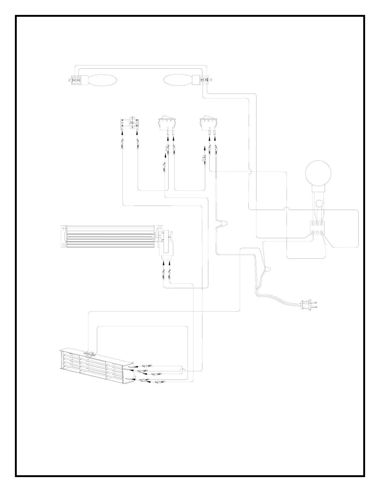
Dimplex 6901860100 - Wiring Diagram

Dimplex 6901860100
15 pages
Print Icon
To Next Page IconTo Next Page
To Next Page IconTo Next Page
To Previous Page IconTo Previous Page
To Previous Page IconTo Previous Page
Loading...
6
WIRING DIAGRAM

Related product manuals