EasyManua.ls Logo

Dimplex SI 30TE - Stromlaufpläne; Wiring Diagrams; Schémas Électriques; Steuerung; Control; Commande

Dimplex SI 30TE
Print Icon
To Next Page IconTo Next Page
To Next Page IconTo Next Page
To Previous Page IconTo Previous Page
To Previous Page IconTo Previous Page
Loading...
www.dimplex.de 452234.66.10 · FD 9407 A-V
Anhang · Appendix · Annexes
SI 30TE
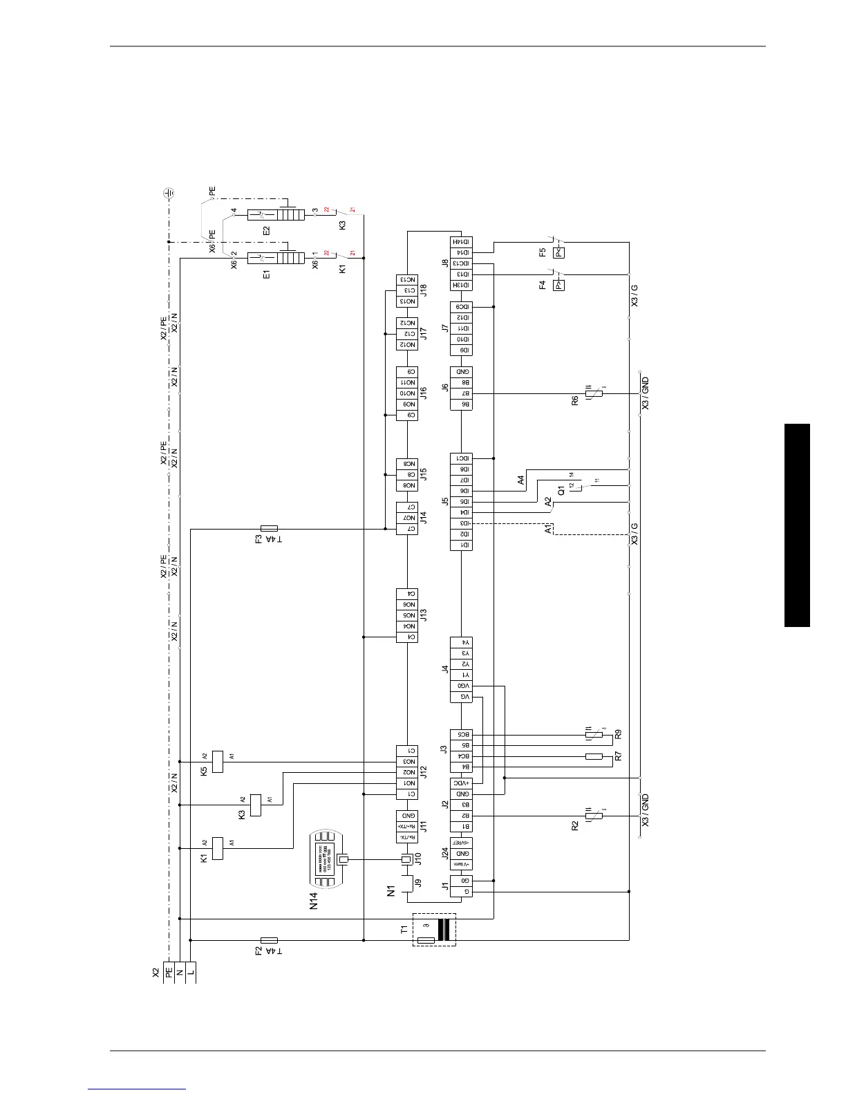
2 Stromlaufpläne / Wiring diagrams / Schémas
électriques
2.1 Steuerung / Control / Commande

Table of Contents

Related product manuals