EasyManua.ls Logo

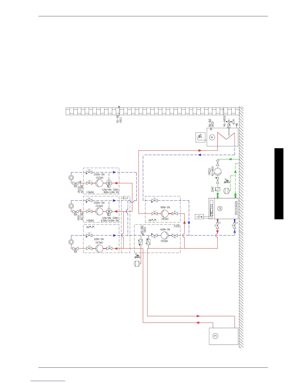
Dimplex SI 30TE - Hydraulische Einbindungsschemen; Hydraulic Integration Diagrams; Schémas Dintégration Hydraulique; Hydraulische Einbindungsschemen; Hydraulic Integration Diagrams; Schémas Dintégration Hydraulique; Monovalente Wärmepumpenanlage mit 3 Heizkreisen und Warmwasserbereitung; Monovalent Heat

Dimplex SI 30TE
Print Icon
To Next Page IconTo Next Page
To Next Page IconTo Next Page
To Previous Page IconTo Previous Page
To Previous Page IconTo Previous Page
Loading...
www.dimplex.de 452234.66.10 · FD 9407 A-IX
Anhang · Appendix · Annexes
SI 30TE
3 Hydraulische Einbindungsschemen / Hydraulic
integration diagrams /
Schémas d’intégration hydraulique
3.1 Monovalente Wärmepumpenanlage mit 3 Heizkreisen und
Warmwasserbereitung / Monovalent heat pump system with three
heating circuits and domestic hot water preparation / Installation
monovalente de pompe à chaleur avec trois circuits de chauffage et
production d'eau chaude sanitaire

Table of Contents

Related product manuals