EasyManua.ls Logo

DINKING DK4000i - Circuit Diagram

DINKING DK4000i
27 pages
Print Icon
To Next Page IconTo Next Page
To Next Page IconTo Next Page
To Previous Page IconTo Previous Page
To Previous Page IconTo Previous Page
Loading...
25
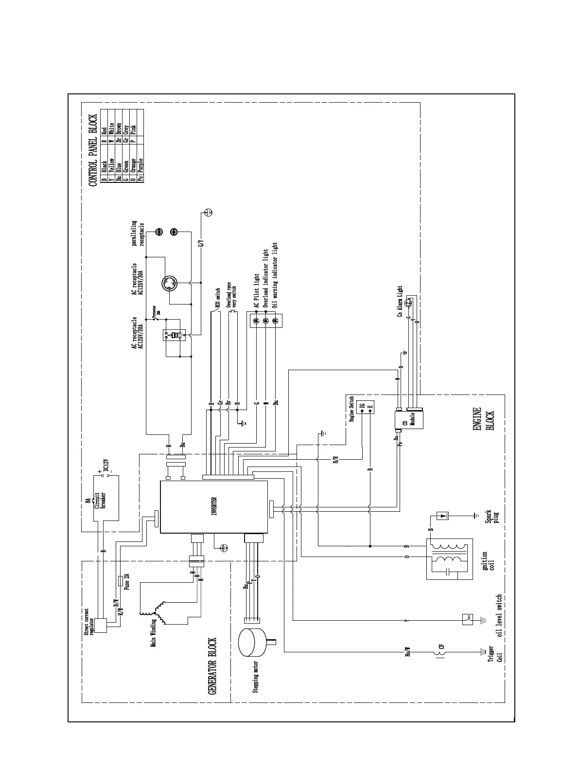
CIRCUIT DIAGRAM
DK4000i SCHEMATICS

Related product manuals