EasyManua.ls Logo

Directed 5706 - Wiring and Connections; Wiring Diagram Overview

Directed 5706
31 pages
Print Icon
To Next Page IconTo Next Page
To Next Page IconTo Next Page
To Previous Page IconTo Previous Page
To Previous Page IconTo Previous Page
Loading...
5
© 2016 Directed. All rights reserved.
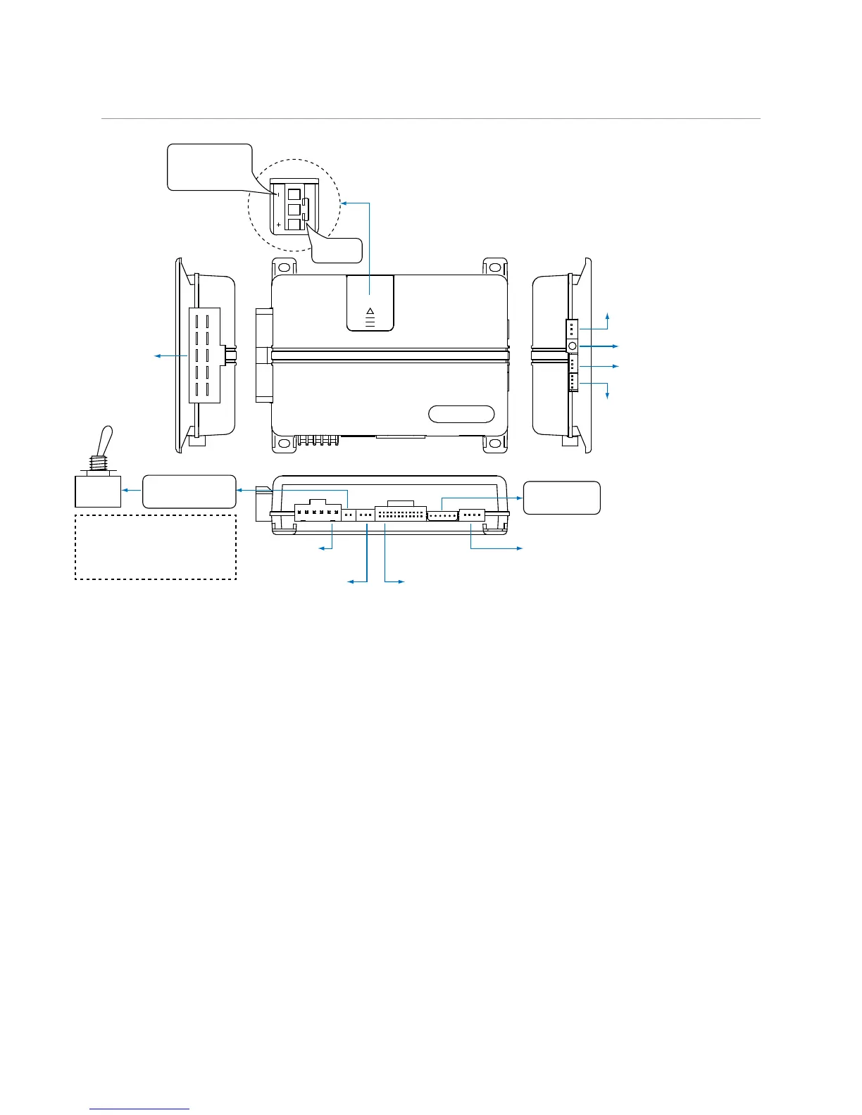
Wiring Diagram
1
10 9 8 7 6
12345
1
1 8
51
1 3
10
12
18
10
9
1
1 12
D2D Port
(for external Directed
interface module)
ON
IMPORTANT!
Remote Start Shutoff
switch must be plugged in
and in the ON position
Sensor Port 1:
Doubleguard Shock Sensor
Sensor Port 2
Thermistor/Temp Sensor
Bitwriter/Directed
SmartStart Port
Door Lock
3-pin Harness
Remote Start
8-pin Harness
Main 6-pin
Harness
(+) or (-) LIGHT
FLASH POLARITY
(10A (MAXIMUM)
FUSE JUMPER)
AUX/Shutdown
24-pin Harness
Remote Start
Shutoff Switch
RF/Control
Center Port
10A FUSE
MINI ATM
Note: Fuse is under the plastic cover and needs to
be installed for the appropriate light flash polarity.
Note: Sensor ports 1 and 2 cannot support constant power and ground connections for 508D due to current
limitations. When installing a 508D use alternate location for constant power and ground connections. See
Tech Tip #1924: Adding external sensor(s) to a Directed system.

Related product manuals