EasyManua.ls Logo

DKS 1803 - 1.5 Flush Mount Rough-in Box

DKS 1803
53 pages
Print Icon
To Next Page IconTo Next Page
To Next Page IconTo Next Page
To Previous Page IconTo Previous Page
To Previous Page IconTo Previous Page
Loading...
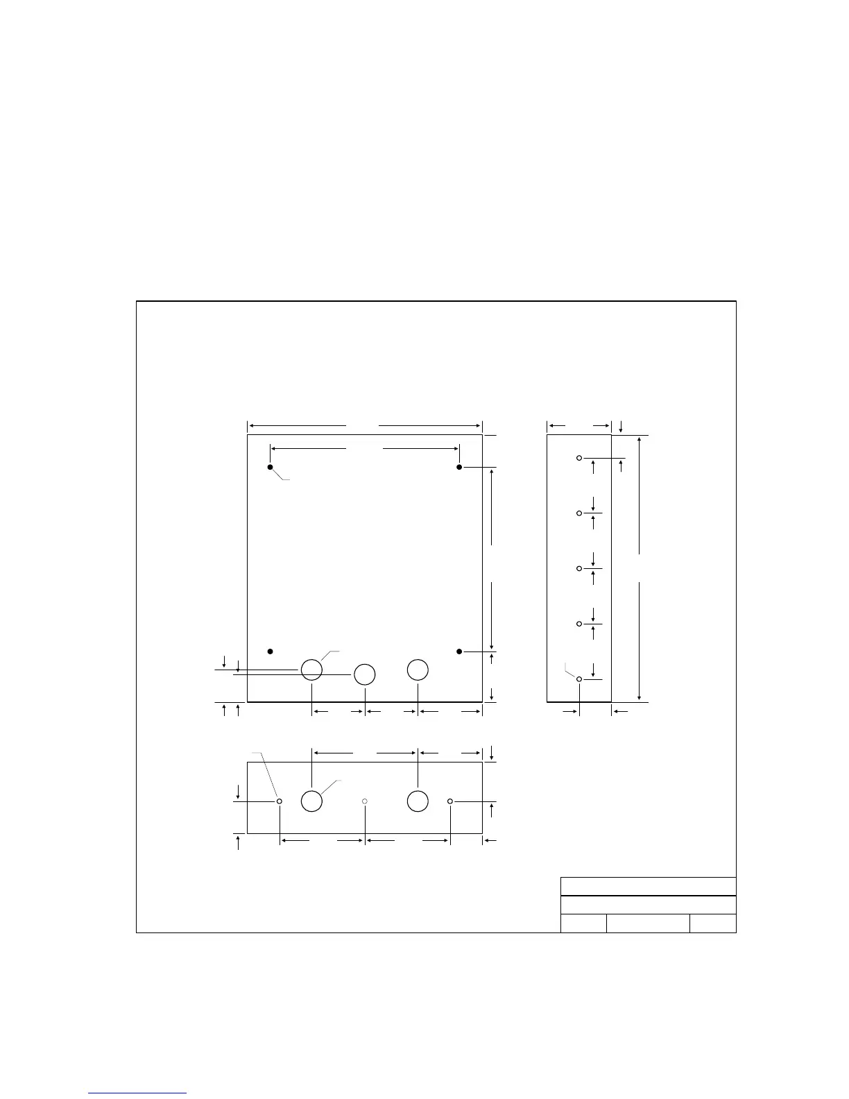
1.5 Flush Mount Rough-in Box (applies to 1803 and 1810 only)
The flush mount installation kit has two parts; the rough-in box and the trim ring. The rough-in box is
installed first.
1.91410.886
3.400
1.125 DIA (3 PL)
3.450
1.300
14.600
1.740
1.740
1.7004.700
.275 DIA (3 PL)
Flush Mount Rough-in Box
(Flush mount rough-in box is included with the 1814-165 and 1814-166 flush mount kits)
DOORKING, INC., INGLEWOOD, CA 90301
Date: Dwg. No.
Flush Mount Rough-in Box
Rev.
Title:
4/11
D
M1800-065-4
10.120
12.800
10-32 x .75 Stud (4 PL)
1.800
1.685
1.500
3.0003.000
1.800
4.700
6.000 3.400
1.125 DIA (2 PL)
3.0003.000 3.0003.000
.275 DIA (5 PL)
1800-060-S-3-14 Page 15

Table of Contents

Other manuals for DKS 1803

Related product manuals