EasyManua.ls Logo

DKS 1810 - Circuit Board Adjustments Overview

Default Icon
53 pages
Print Icon
To Next Page IconTo Next Page
To Next Page IconTo Next Page
To Previous Page IconTo Previous Page
To Previous Page IconTo Previous Page
Loading...
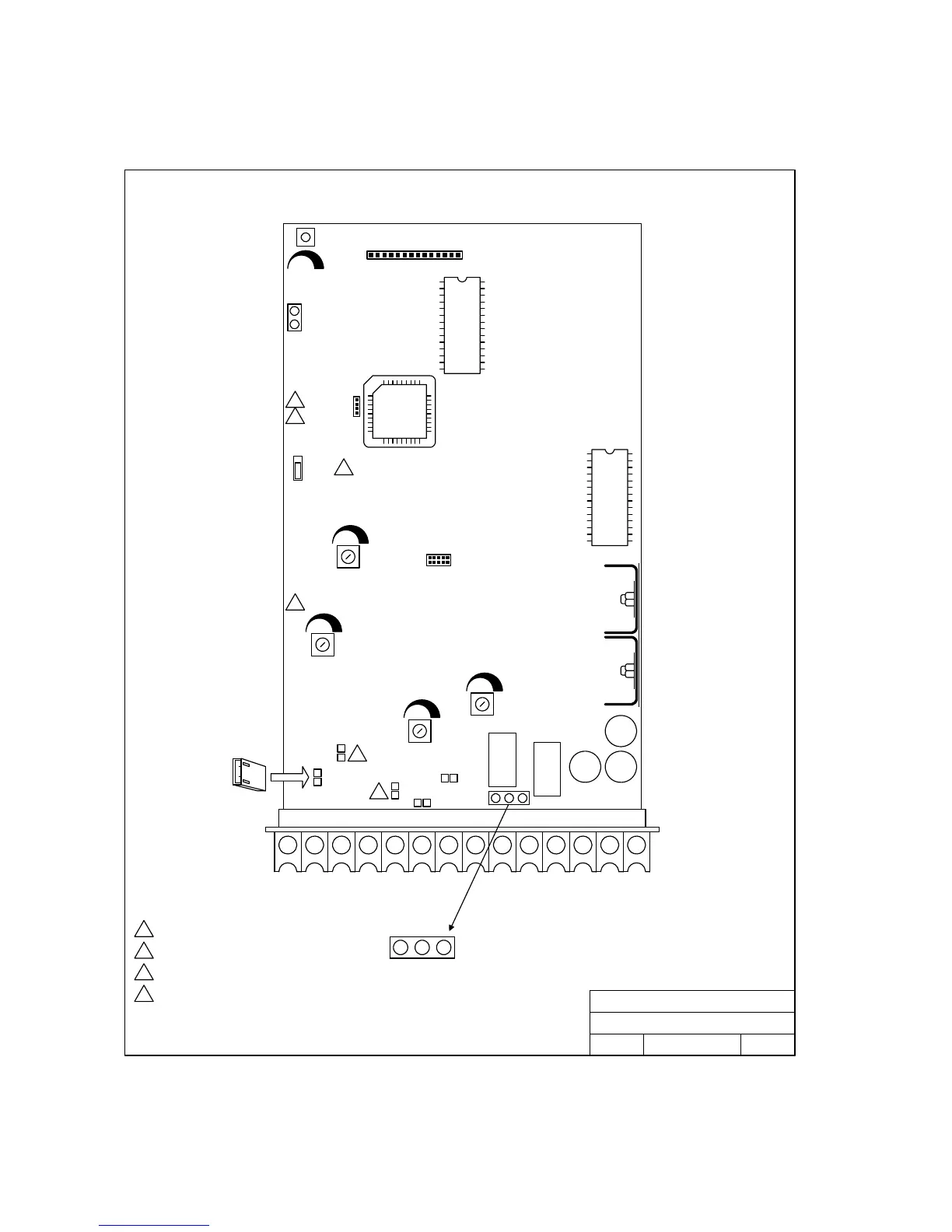
2.1 Circuit Board Adjustments
DOORKING, INC., INGLEWOOD, CA 90301
Title:
Date: Rev.Dwg. No.
1862 Control Board Adjustments
3/14
D
M1800-065-12
1862-010 Control Board Adjustments
MIN MAX
CONTRAST
DISPLAY
SWITCH 2
INPUT
Master
Code
ON
OFF
MIN MAX
MIN MAX
MIN MAX
KEYPAD CONNECTOR
FEEDBACK
SPEAKER
VOLUME
CLICK
SENS
RING PIN
N.O.
N.C.
COM
RELAY 2
TERMINALS
REV H Boards and later.
1
1
3 42 7 85
6 11 129 10 14131
MIN MAX
MIC
VOLUME
A-Z-CALL
BUTTON
CONNECTOR
HANDS
FREE
HANDSET
TONE ON
TONE OFF
2
REV I Boards and later.
2
2
2
3
Used on 1802-EPD model only.
3
4
4
May be a toggle switch on older boards.
Page 22 1800-060-S-3-14

Table of Contents

Other manuals for DKS 1810

Related product manuals