EasyManua.ls Logo

DKS 1814 - Surface Mount Units with Recess Box

Default Icon
57 pages
Print Icon
To Next Page IconTo Next Page
To Next Page IconTo Next Page
To Previous Page IconTo Previous Page
To Previous Page IconTo Previous Page
Loading...
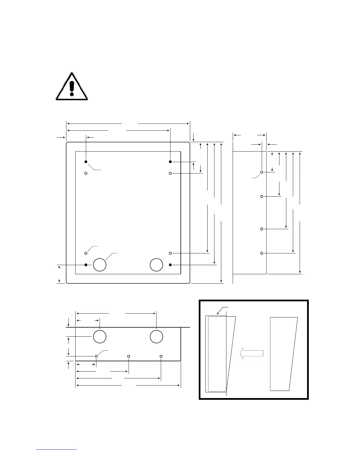
1.1.2 Surface Mount Units with Recess Box
Surface mount units can be semi-flush mounted into a wall or pilaster by using the optional recess-
mounting box (p/n 1803-150). Be sure the unit is mounted securely and is not subject to vibration
from closing doors or gates.
WARNING! If this entry system is used to control a vehicular gate with an
automatic gate operator, the entry system must be mounted a minimum of
ten (10) feet away from the gate and gate operator, or in such a way that a
person cannot operate the entry system and touch the gate or gate operator
at the same time.
.5
3.625
2.25
4.875
8.375
11.0
13.25
15.25
2.125
11.125
15.00
2.125
3.375
12.0
13.25
2.2
5.75
9.3
11.5
2.0
2.68
8.812
1.06.5
1.375 DIA
.25 DIA
10-24 x 1.25 STUD
.25 DIA
.25 DIA
Surface Mount
Entry System
1803-150
Recess Box
11

Table of Contents

Related product manuals