EasyManua.ls Logo

Doosan C185 - Portable Compressor Fluid Chart

Doosan C185
60 pages
Print Icon
To Next Page IconTo Next Page
To Next Page IconTo Next Page
To Previous Page IconTo Previous Page
To Previous Page IconTo Previous Page
Loading...
Operating & Maintenance Manual LUBRICATION
52 Book: 46551819 (2-11-2011) Rev B
Lubrication
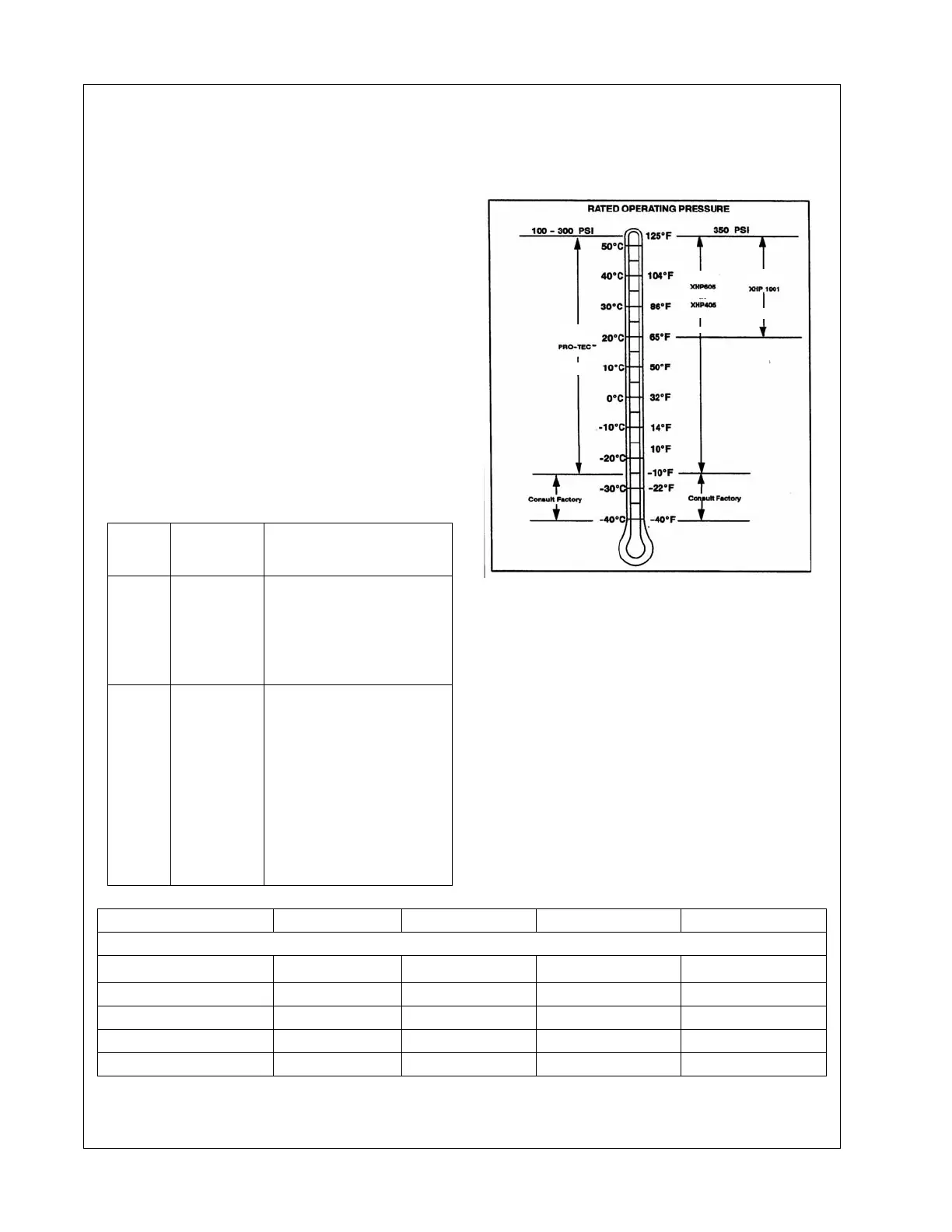
Portable Compressor Fluid
Chart
Refer to these charts for correct compressor
fluid required. Note that the selection of fluid
is dependent on the design operating
pressure of the machine and the ambient
temperature expected to be encountered
before the next oil change.
NOTE: Fluids listed as “preferred” are
required for extended warranty.
Compressor oil carryover (oil
consumption) may be greater with the use
of alternative fluids.
Preferred Fluids - Use of these fluids with
original Ingersoll Rand/Doosan branded
filters can extend airend warranty. Refer to
operator’s manual warranty section for
details or contact your Portable Power
representative.
Design
Operating
Pressure
Ambient
Temperature
Specification
100 psi to
300 psi
-10
0
F to 125
0
F
(-23
0
C to 52
0
C)
Preferred:
PRO-TEC
®
Alternate:
ISO Viscosity Grade 46 with rust
and oxidation inhibitors, designed
for air compressor service.
350 psi
(-23
0
C to 52
0
C)
-10
0
F to 125
0
F
65
0
F to 125
0
F
(18°C to 52°C)
Preferred:
XHP 605
Alternate:
XHP405
ISO Viscosity Grade 68 Group 3
or 5 with rust and oxidation
inhibitors designed for air
compressor service.
Preferred:
XHP605
XHP1001
Preferred Fluids 1 gal. (3.8 Litre) 5 gal. (19.0 Litre) 55 gal. (208.2 Litre) 220 gal. (836 Litre)
Preferred:
PRO-TEC
®
36899698 36899706 36899714 36899722
XHP605 - 22252076 22252050 22252068
XHP1001 - 35612738 35300516 -
XHP405 - 22252126 22252100 22252118
Engine Oil 54480918 36875938 36866903

Related product manuals