EasyManua.ls Logo

Dormakaba GSR XEA - Page 2

Dormakaba GSR XEA
12 pages
Print Icon
To Next Page IconTo Next Page
To Next Page IconTo Next Page
To Previous Page IconTo Previous Page
To Previous Page IconTo Previous Page
Loading...
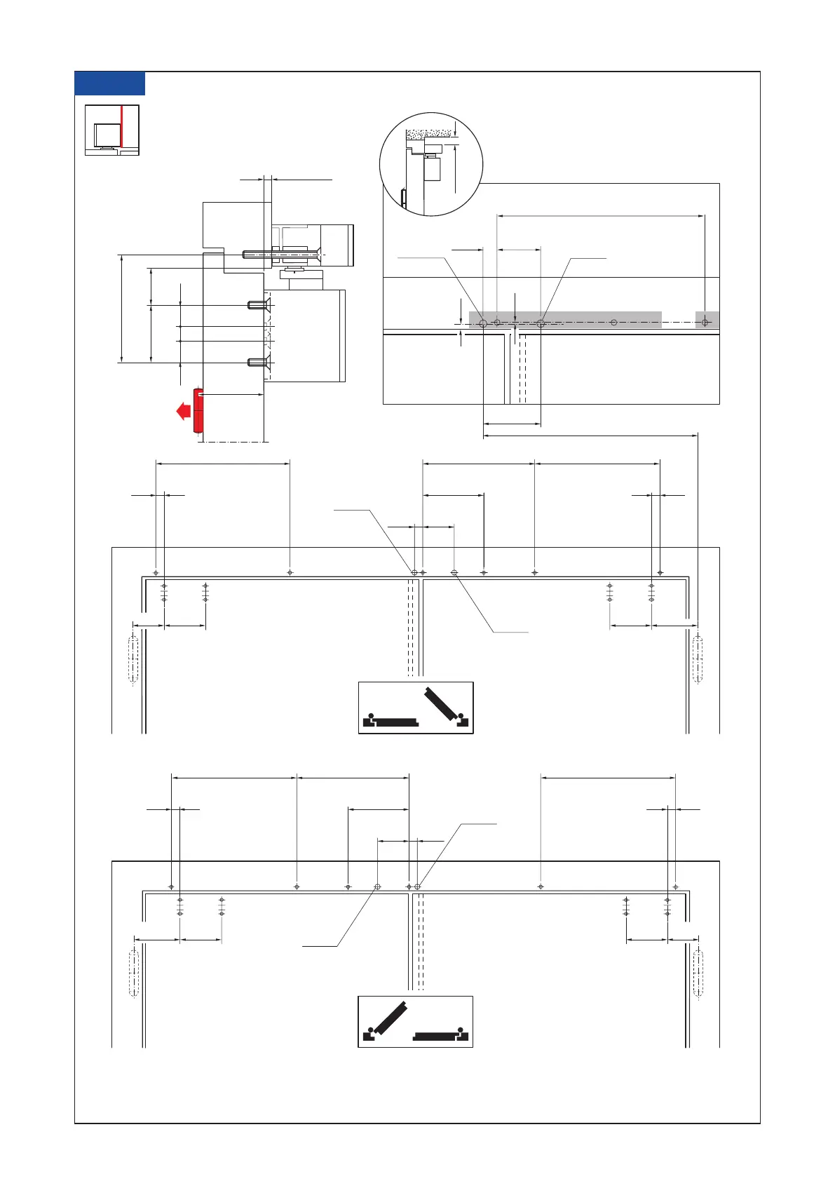
GS
492
176160160107
519
3434
444
31
250
95
230 VAC
Ø12
HT
RM-N
Ø10
GS
492
176 160
160107
519
34 34
444
31
250
95
230 VAC
Ø 12
HT
RM-N
Ø 10
G
95
31
2,5
230 VAC
Ø 12
HT
RM-N
Ø10
444
7,5
1109
126
81
2
8
4
3
16 16
min. 10
max. 5
max. 90
1 Montage
Installation
2
GSR-EMR XEA BG
2017-10
WN 059319 45532
dormakaba
Montage
Installation
Montageanleitung
Mounting instruction
4.1 A

Related product manuals