EasyManua.ls Logo

Doyon CA12G - Page 46

Doyon CA12G
87 pages
Print Icon
To Next Page IconTo Next Page
To Next Page IconTo Next Page
To Previous Page IconTo Previous Page
To Previous Page IconTo Previous Page
Loading...
E1
3 2 1
H5CL
OMRON
TIMER
RST
4
TIMER
1234
RST
OMRON
H5CL
CC
OMRON E5CS
ON
AL
AL
ON
OMRON E5CS
CC
H5CL
OMRON
RST
4 3 2 1
TIMER
4
RST
OMR
ON
H5CL
123
1
2
3
4
10
11
12 13
14
15
16
19
17
18
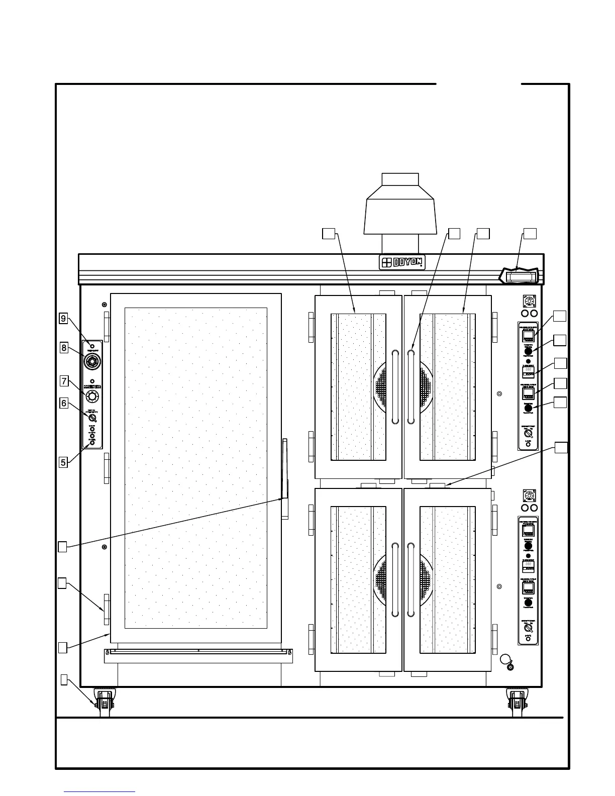
CAOP12G
CAOP12G

Related product manuals