EasyManua.ls Logo

Doyon CA12G - Page 79

Doyon CA12G
87 pages
Print Icon
To Next Page IconTo Next Page
To Next Page IconTo Next Page
To Previous Page IconTo Previous Page
To Previous Page IconTo Previous Page
Loading...
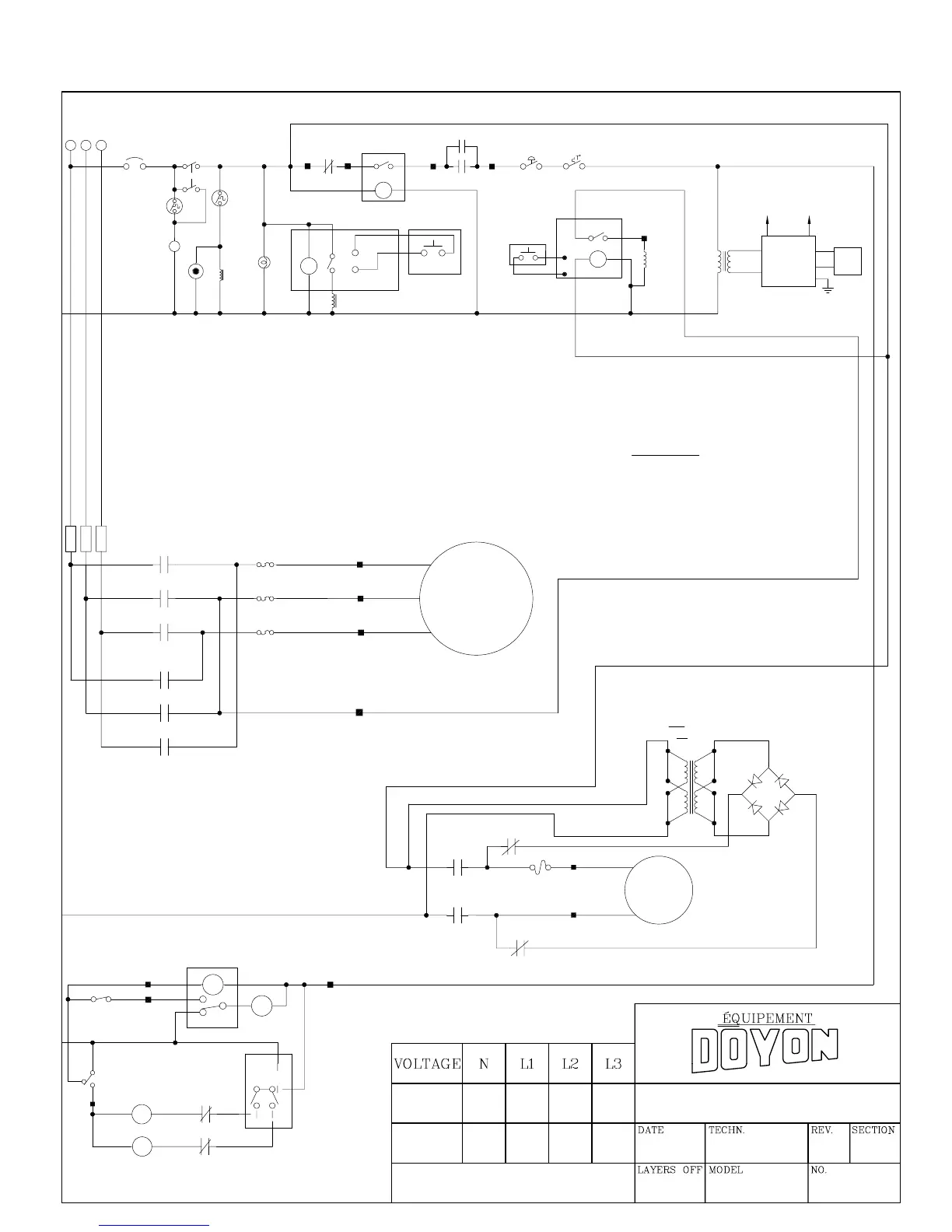
G3
(ALARM)
BUZZER
P.L.
FAN
COOLING
SWITCH
OVEN
OL1−95
5 A.
SWITCH
R1
ST
M2−44
RR
M2
M2
13 14
43 44
R1−4
M2
3 A.
32 31
M2
22 21
D1
TR
100 VA
X2
X3
X4
X1H1
120−240V>
12−24V
H2
H4
H3
OVEN
VALVE
VL1
6
2
8
7
1
4
STEAM
SWITCH
BUZZER
R1−7
M2
RACK
2
3
1
7
4
2
8
6
N1
2
1
43
AR
AV
AV
A2
21 22
A1
AR
A1 A2
21 22
BULB
SPARKING
ELECTRODE
VA
VA
ST
TR
24V
VALVE
GND
CONTROL
IGNITION
BURNER
LIMIT
HIGH
TH
120/24V
24V
VALVE
GAS
VALVE
SWITCH
PRESSURE
FLAME ROD
DETECTION
95 96
OL1
THERMOSTAT
7 8
9 10
L3 T3
L2 T2
L1 T1
L1 T1
L2 T2
L3 T3
L1 T1
L2 T2
AR
M1
OL1
T1
T2
T3
L2L1
F2
+
HIGH
LIMIT
140°
HIGH
LIMIT
110°
1/8HP
MOTOR
ROTATING RACK
(GEAR BOX)
M1−B
M1−A
AV−M1
AR−M1
COOKING
SWITCH
COOKING TIMER
H5CX (MODE A−1)
M
1
4
6
8
7
2
ELECTRONIC
TIMER
DOOR
SWITCH
3/4HP
MOTOR
STEAM TIMER
H5CX (MODE D)
F1
L2
F3
L3 T3
OL1−95
CA6 GAS 3 PHASES 60 Hz
12/07/04 M. FAUCHER 4
8
STANDARD
CA6G13
1 / 1
120 / 208 0.5A 3.5A 3.5A 3.0A
TOTAL POWER: 1.0 Kw 60 Hz
120 / 240 0.5A 3.5A 3.5A 3.0A
WARNING
FOR SUPPLY SYSTEMS CONSISTING OF A DELTA
SECONDARY TRANSFORMER, MAKE SURE THAT
THE PHASE FEEDER WITH THE HIGHEST VOLTAGE
(HIGH LEG) IS CONNECTED TO L3 IN THE SUPPLY
BOX OF THIS OVEN (120 / 240V. 3 PH. SYSTEMS).