EasyManua.ls Logo

Doyon JA4 - Page 55

Doyon JA4
70 pages
Print Icon
To Next Page IconTo Next Page
To Next Page IconTo Next Page
To Previous Page IconTo Previous Page
To Previous Page IconTo Previous Page
Loading...
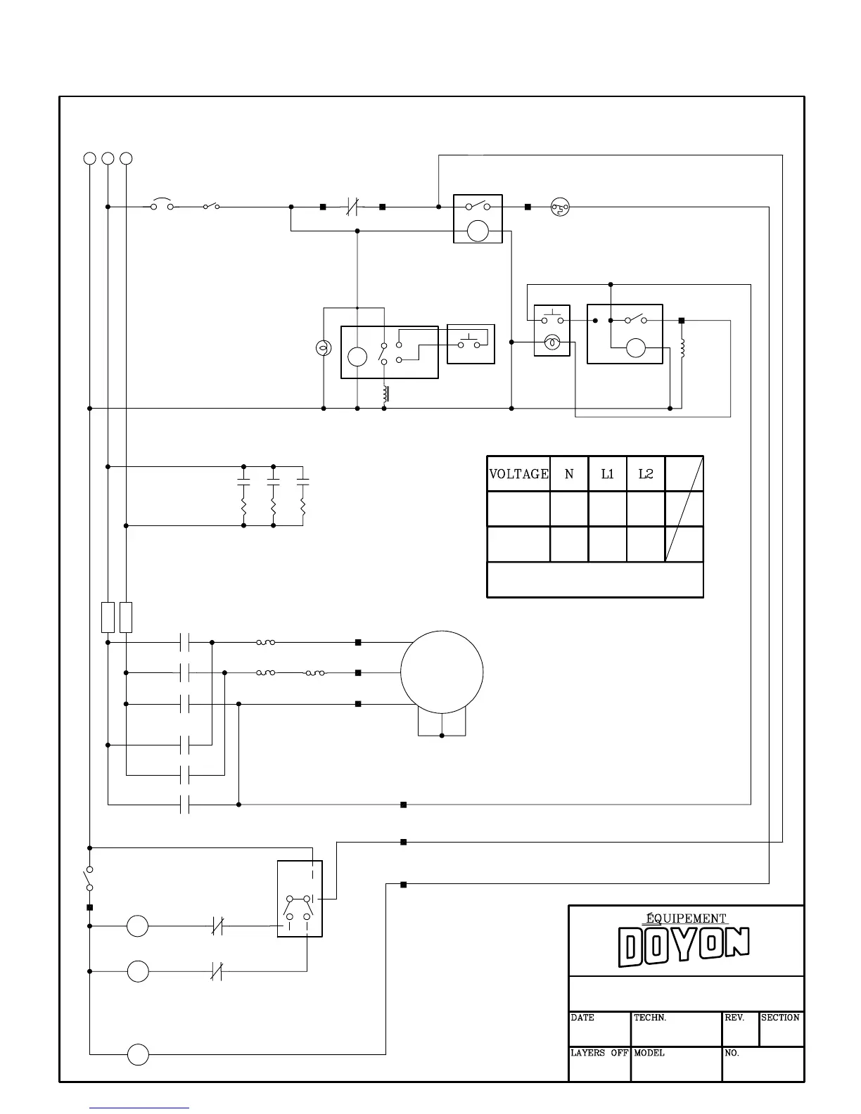
G2
N1
MODE E
TV
B1 15
A2
18
A1
BUZZER
VL
VALVE
OVEN
C1
LIMIT
HIGH
SWITCH
OVEN
9 10
7 8
HL1
43
1
2
21 22
21 22
A2
A1
A2
A1
AR
AV
AR
AV
T5
T4
T1
T8
T3T2
L3 T3
L3 T3
AR
L1 T1
L2 T2
VA
ST
C1
VA
ST
OL1
L2L1N
OL1
95 96
BULB
C1
F2F1
AV
L3 T3
L2 T2
L1 T1
L2 T2
L1 T1
C1
A2
A1
ELECTRONIC
TIMER
STEAM TIMER H3DE
COOKING
SWITCH
COOKING TIMER
H5CX (MODE A−1)
M
1
4
6
8
7
2
5 A.
THERMOSTAT
2.5 KW
EACH
ELEMENT
3/4HP
MOTOR
DOOR
SWITCH
120 / 240 0.6A 35.5A 34.5A
JA4SC 1 PHASE 60 Hz
23/08/04 M. FAUCHER 5
2 & 5
STANDARD
JA4SCDV1
1 / 1
120 / 208 0.8 A 38.0A 37.0A
TOTAL POWER: 8.4 Kw 60 Hz

Related product manuals