EasyManua.ls Logo

Doyon JA4 - Page 57

Doyon JA4
70 pages
Print Icon
To Next Page IconTo Next Page
To Next Page IconTo Next Page
To Previous Page IconTo Previous Page
To Previous Page IconTo Previous Page
Loading...
G4
C1
5 A.
N1
MODE E
TV
B1
15
A2
18
A1
BUZZER
VL
VALVE
OVEN
C
OL1
T2 T8
T3
AV
AR
T1
T4
T5
L3 T3L2 T2
L1 T1
L3 T3
L2 T2
L1 T1
L1 T1
L2 T2
L3 T3
OVEN
SWITCH
HL1
LIMIT
HIGH
9 10
7 8
HALO.
AV
AR
AV
AR
A1 A2
A1 A2 21 22
21 22
2
1
34
ST
VA
C1
VA
ST
C1
C1
C1
L3
L2L1N
OL1
95 96
BULB
ELEMENTS
2.5 KW
F2F1
C1
A2A1
ELECTRONIC
TIMER
STEAM TIMER
H3DE
COOKING
SWITCH
COOKING TIMER
H5CX (MODE A−1)
M
1
4
6
8
7
2
THERMOSTAT
3/4 HP
MOTOR
1 PHASE
DOOR
SWITCH
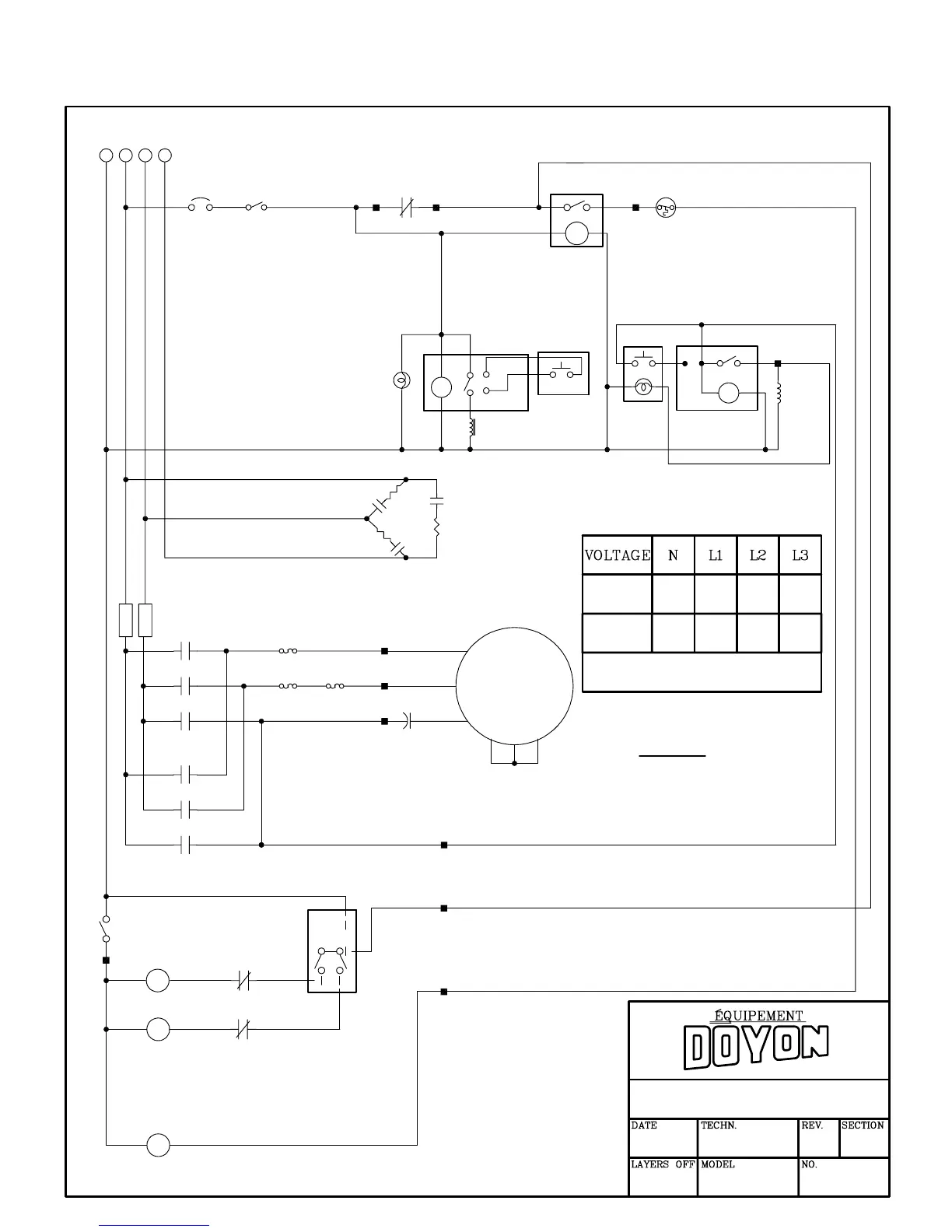
120 / 240 0.8A 19A 18A 18A
JA4SC 3 PHASES 60 Hz
03/08/04 M. FAUCHER 5
2 & 5
STANDARD
JA4SCDV3
1 / 1
120 / 208 0.8A 22A 21A 21A
TOTAL POWER: 8.0 Kw 60 Hz
WARNING
FOR SUPPLY SYSTEMS CONSISTING OF A DELTA
SECONDARY TRANSFORMER, MAKE SURE THAT
THE PHASE FEEDER WITH THE HIGHEST VOLTAGE
(HIGH LEG) IS CONNECTED TO L3 IN THE SUPPLY
BOX OF THIS OVEN (120 / 240V. 3 PH. SYSTEMS).

Related product manuals