EasyManua.ls Logo

Duke FWM3-13 - Page 31

Duke FWM3-13
34 pages
Print Icon
To Next Page IconTo Next Page
To Next Page IconTo Next Page
To Previous Page IconTo Previous Page
To Previous Page IconTo Previous Page
Loading...
31
Installation and Operation of Product Holding Cabinets
2
1
3
4
2
1
3
4
Relay
TERMINAL
BLOCK
WHT
RED
4 GRY
YEL
YEL
BLK
BLK
WHT
DUKE FOOD WARMER
MODEL FWM3-24Z
100/120/208/230/240 VAC
50/60 HZ 1 PH.
160942 REV. D
BLK
8 RED
9 RED
BLK
RED
YEL
33 BLK
11 BLU
22 BLU
33 BLU
44 BLU
12 GRY
13 GRY
3 RED
11 BLK
22 BLK
44 BLK
YEL
Relay
CE option
}
}
RED
BLK
BLU
REAR TIMER BAR (option)
4 2 3 1
4 2 1 3
R1R2
WHT
RED
BLK
BLK
WHT
RED
4 3 2 1
4 3 2 1
BLU
RED
BLK
WHT
BLK
WHT
RED
4 3 2 1
4 3 2 1
BLU
FRONT TIMER BAR
RED
BLK
BLU
3 2 4 1
3 2 1 4
F2F1
14
15
20
8
9
19
10
18
1
2
3
6
4
5
13
11
12
HMC-34 DU2 [Daypart – Lid Prompt]
YEL
GRN
WHT
BLK
ORG
P2
P1
+5Vdc
GND
1
2
3
4
5
6
7
8
9
10
11
12
13
14
BLK
WHT
RED
BLK
YEL
RED
BLK
BLK
RED
1
10
11
20
1
7
8
14
+5Vdc
GND
BLK
RED
WHT
data
data
RTD3
RTD4
RTD2
RTD1
+5Vdc
GND
data
GND
+5Vdc
XFMR
12V~ SEC.
PRIMARY
YEL
RED
1 2 3 4 5 6
USB
YEL
WHT
BLU
BLK
RED
RED
RED
BLK
YEL
DAY
PART
Option
B
L
D
1 2 3 4
ZONE 1
heater 1
thermostat
}
}
}
}
ZONE 2
heater 2
thermostat
ZONE 3
heater 3
thermostat
ZONE 4
heater 4
thermostat
22 BLK
11 BLK
33 BLK
44 BLK
22 BLU
11 BLU
33 BLU
44 BLU
POWER SWITCH
BLK
WHT
RED
YEL
Line Cord
L1
L2/N
Timer Bars
WHT
BLK
3 2 4 1
3 2 1 4
4 2 3 1
4 2 1 3
1
(ZONE 1)
2
(ZONE 2)
3
(ZONE 1)
4
(ZONE 2)
5
(ZONE 3)
6
(ZONE 4)
7
(ZONE 3)
8
(ZONE 4)
FWM3-24Z
2 ROWS, 4 COLUMNS
SHELF 1
SHELF 2
F3 F4 R3R4
2
2
1
1
3
3
4
4
to term block
To P1
RTD
to relay
To P1
RTD
to term block
to relay
HEATER
ELEMENT
ASSEMBLY
(1) per Shelf
1O BLU
1O BLU
}
}
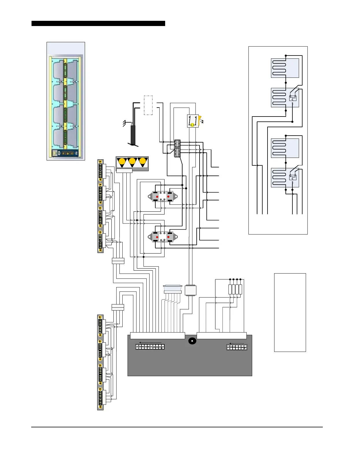
FWM 3-24Z Internal Wiring Schematic

Other manuals for Duke FWM3-13

Related product manuals