EasyManua.ls Logo

DYNACO Stereo 80 - Page 19

DYNACO Stereo 80
21 pages
Print Icon
To Next Page IconTo Next Page
To Next Page IconTo Next Page
To Previous Page IconTo Previous Page
To Previous Page IconTo Previous Page
Loading...
00601P 3 3
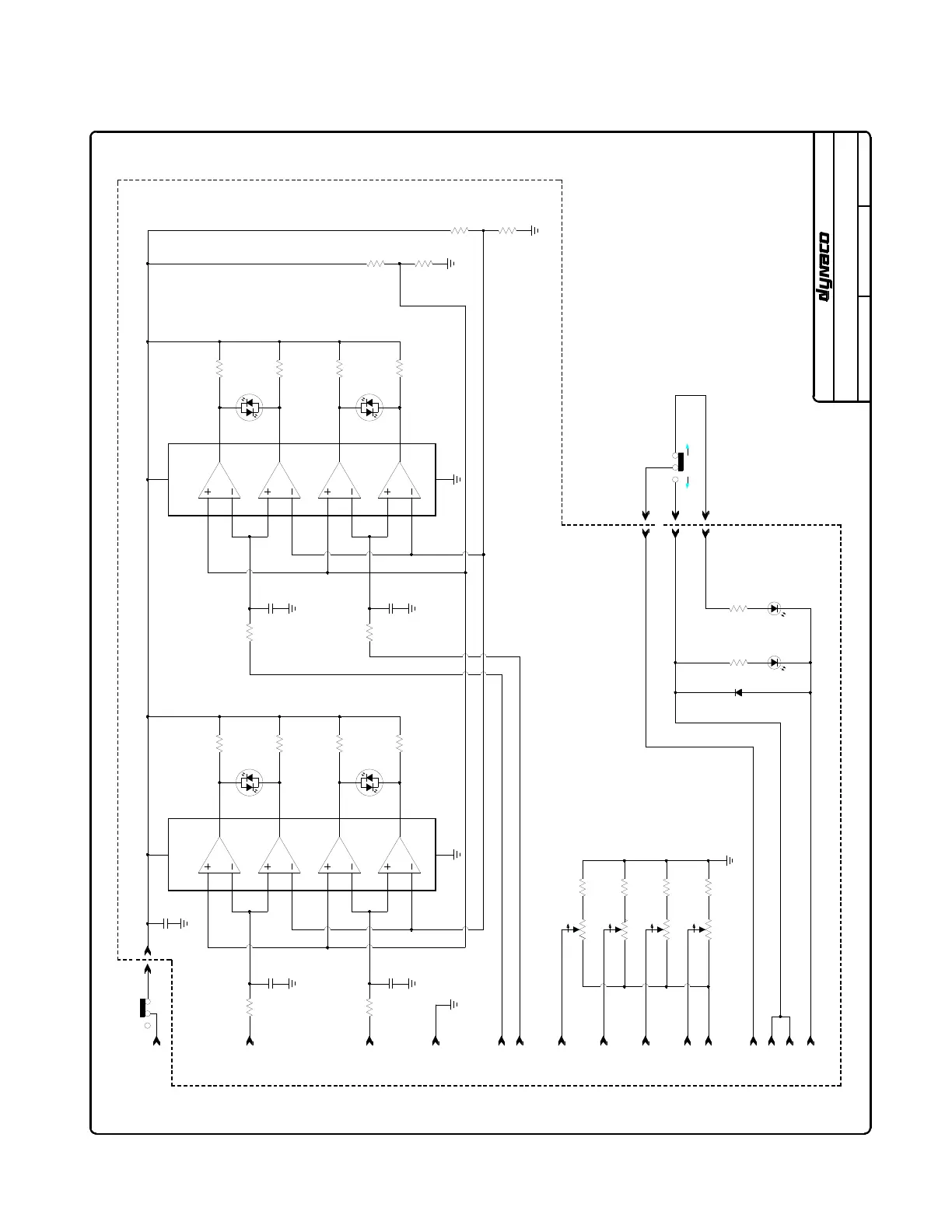
STEREO 80 BIAS ADJUST & INDICATORS
3 MAR 95 OFREV PAGE DWG#
SW2
ULTRALINEARTRIODE
D10
LED5
R75
1K 1K
R76
LED6
P3
25K
25K
P4
R71
R72
39K
39K
V3 BIAS ADJUST
V4 BIAS ADJUST
CW
C52
C51
160V
.1uF
14
7
.047uF
.047uF
11
13
12
8
9
10
1/4
1/4
1/4
1/4
4
1
6
5
2
3
LM339
U3
160V
160V
C55
GREEN
RED
(V3 BIAS)
C54
C53
14
7
.047uF
.047F
11
13
12
8
9
10
1/4
1/4
1/4
1/4
4
1
6
5
2
3
LM339
U4
160V
160V
Y3
+12V
Y4
Y7
Y8
GND
R63
20.5K
127
R64
127
R65
17.4K
R66
(74mV)
(87mV)
R55
1.1K
R56
R57
R58
1.1K
1.1K
1.1K
BIAS ADJUST PC BOARD
(MOUNTED TO FRONT PANEL)
BIAS INDICATORS
OFF ON
SW3
P3
P4
P7
P8
- 60V
P7
P8
25K
25K
R73
R74
39K
39K
V7 BIAS ADJUST
V8 BIAS ADJUST
M1
K1
K2
M2
(TRIODE) (ULTRALINEAR)
R51
10K
R52
10K
R53
10K
R54
10K
CW
CW
CW
+12V
2
1
3
1 32
GREEN
RED
(V4 BIAS)
LED1
LED2
GREEN
RED
(V7 BIAS)
R59
1.1K
R60
R61
R62
1.1K
1.1K
1.1K
GREEN
RED
(V8 BIAS)
LED3
LED4
REDAMBER

Related product manuals